Vuokrataan - Kivääritehtaankatu 6
Kivääritehtaankatu 6, 40100 Jyväskylä, Tourula
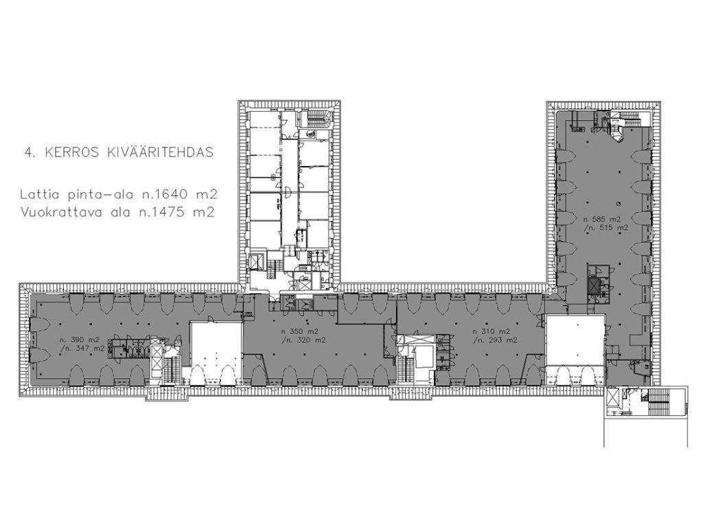
Vuokrataan Jyväskylän Tourulasta neljännen kerroksen 1 475 m² toimistotila.
Toimisto koostuu useammasta avotilasta ja työ-/neuvotteluhuoneista. Tilaa voidaan muokata tarpeiden mukaisesti. Tila on ilmanvaihdolla jäähdytetty.
Keskeisen sijaintinsa ansiosta kiinteistöön on helppo saapua ja kaikki Tourulan palvelut ovat lähettyvillä. Autoille on hyvin tilaa pihassa. Rautatieasemalle on vain lyhyt kävelymatka.
Kysy rohkeasti lisätietoja ja sovitaan käynti kohteella jo tänään!
Toimisto koostuu useammasta avotilasta ja työ-/neuvotteluhuoneista. Tilaa voidaan muokata tarpeiden mukaisesti. Tila on ilmanvaihdolla jäähdytetty.
Keskeisen sijaintinsa ansiosta kiinteistöön on helppo saapua ja kaikki Tourulan palvelut ovat lähettyvillä. Autoille on hyvin tilaa pihassa. Rautatieasemalle on vain lyhyt kävelymatka.
Kysy rohkeasti lisätietoja ja sovitaan käynti kohteella jo tänään!
Kohteen tiedot
Pinta-ala:
1 475 m²
Kerros:
4
Yhteyshenkilö:

Mikko Ranta
mikko.ranta@hausala.fi
050 360 6500
mikko.ranta@hausala.fi
050 360 6500

Mika Savikko
mika.savikko@hausala.fi
050 472 7077
mika.savikko@hausala.fi
050 472 7077