Vuokrataan - Plaza Business Park
Äyritie 18, 01510 Vantaa, Aviapolis
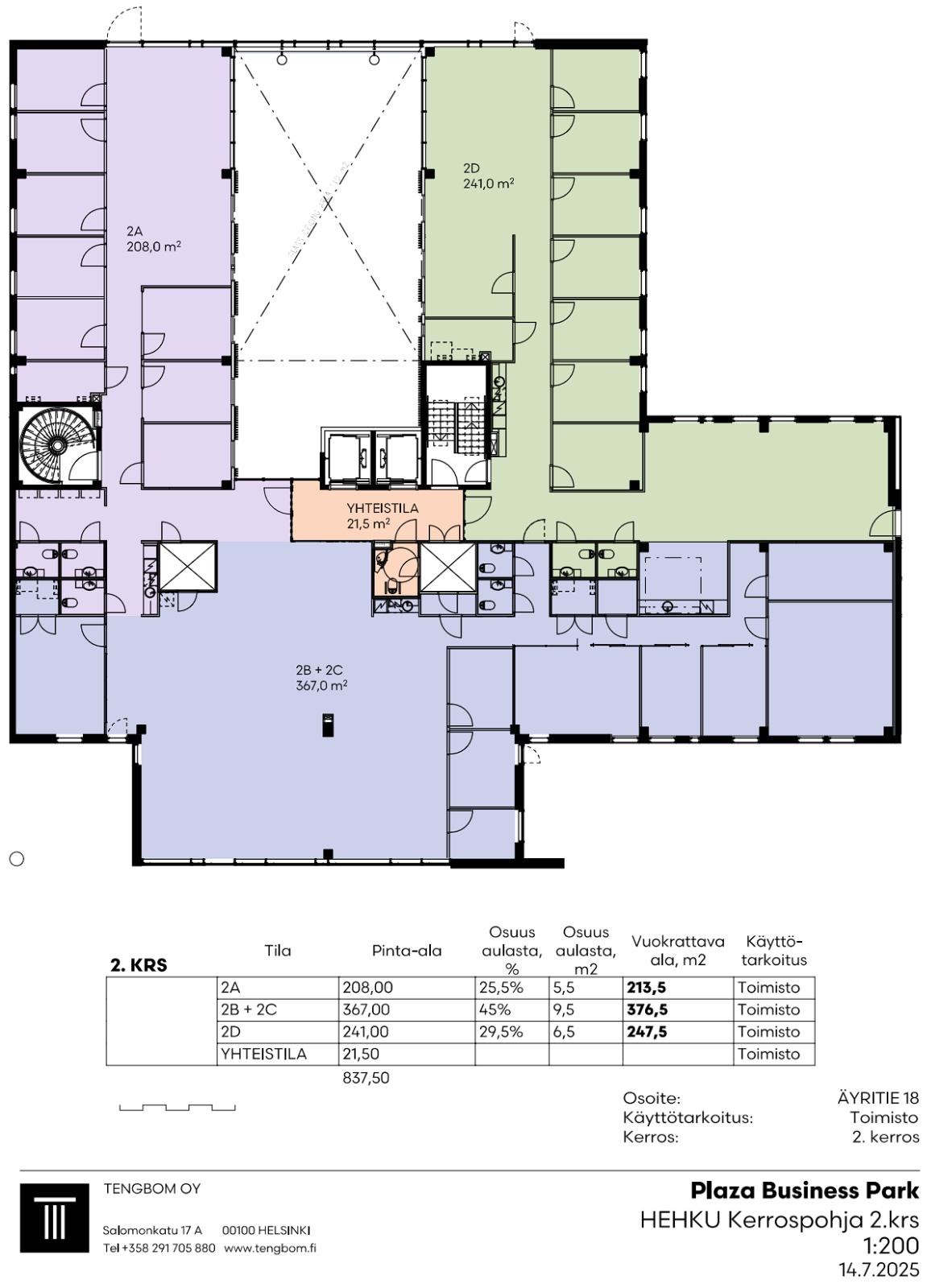
Vuokrataan Vantaan Aviapoliksesta toisen kerroksen heti vapaa 213 m² toimistotila 2A (Rakennus Hehku).
Plaza Business Park tarjoaa vuokrattavia toimitiloja. Vuosina 2011 - 2014 valmistunut Plaza on toiminnallisesti yhtenäinen toimistokokonaisuus, joka käsittää viisi toimistorakennusta ja pysäköintilaitoksen. Plaza tarjoaa vuokralaisilleen edustavat, modernit toimitilat erinomaisella sijainnilla sekä monipuoliset liiketoiminnan tukipalvelut.
Kysy rohkeasti lisätietoja ja sovitaan käynti kohteella jo tänään!
Plaza Business Park tarjoaa vuokrattavia toimitiloja. Vuosina 2011 - 2014 valmistunut Plaza on toiminnallisesti yhtenäinen toimistokokonaisuus, joka käsittää viisi toimistorakennusta ja pysäköintilaitoksen. Plaza tarjoaa vuokralaisilleen edustavat, modernit toimitilat erinomaisella sijainnilla sekä monipuoliset liiketoiminnan tukipalvelut.
Kysy rohkeasti lisätietoja ja sovitaan käynti kohteella jo tänään!
Kohteen tiedot
Pinta-ala:
213 m²
Kerros:
2
Yhteyshenkilö:

Matti Pöyhiä
matti.poyhia@hausala.fi
040 722 6650
matti.poyhia@hausala.fi
040 722 6650

Mika Savikko
mika.savikko@hausala.fi
050 472 7077
mika.savikko@hausala.fi
050 472 7077