Vuokrataan - Turun Pakkarinpuisto
Veistämönaukio 1-3, 20100 Turku
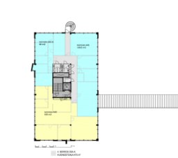
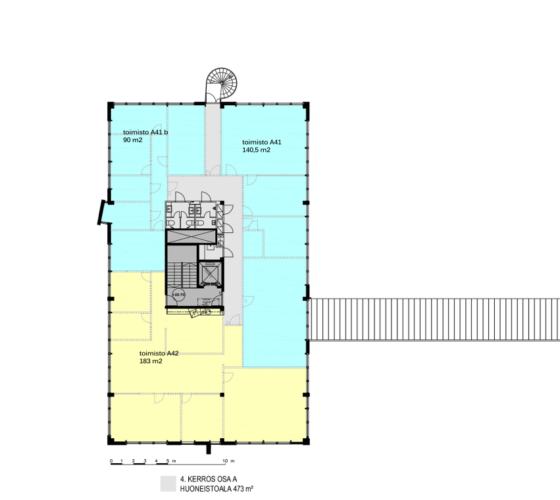
Vuokrattavana 473 m² toimistotila neljännestä kerroksesta. Tilaan kuuluu A41 ja A42 tilat.
Kiinteistö Oy Turun Pakkarinpuisto sijaitsee komealla paikalla Veistämönaukiolla Aurajoen suunnalla. Vuonna 1996 valmistunut kiinteistö tunnettiin aiemmin nimellä WTC Turku. Kahdesta toimistotornista koostuva kohde tarjoaa modernit, mutta arvokkaat tilat ja palvelut niin isolle kuin pienellekin käyttäjälle.
Talossa on aulapalvelu ja henkilöstöravintola sekä yhteiskäytössä olevia neuvottelutiloja.
Oma pysäköintihalli ja hyvät julkiset liikenneyhteydet takaavat helpon pääsyn kiinteistöön.
Kysy lisätietoja ja sovitaan tilojen esittely!
Kiinteistö Oy Turun Pakkarinpuisto sijaitsee komealla paikalla Veistämönaukiolla Aurajoen suunnalla. Vuonna 1996 valmistunut kiinteistö tunnettiin aiemmin nimellä WTC Turku. Kahdesta toimistotornista koostuva kohde tarjoaa modernit, mutta arvokkaat tilat ja palvelut niin isolle kuin pienellekin käyttäjälle.
Talossa on aulapalvelu ja henkilöstöravintola sekä yhteiskäytössä olevia neuvottelutiloja.
Oma pysäköintihalli ja hyvät julkiset liikenneyhteydet takaavat helpon pääsyn kiinteistöön.
Kysy lisätietoja ja sovitaan tilojen esittely!
Kohteen tiedot
Pinta-ala:
473 m²
Hinta-arvio:
20 - 24 €/m²
(9 460 - 11 352 €/kk)
Rakennusvuosi:
1996
Kerros:
4
Tilan ominaisuudet:
- Heti vapaa
- Huonetoimisto
- Keittiö, yhteiskäyttöinen
- Koneellinen ilmanvaihto
- WC, yhteiskäyttöinen
Kiinteistön palvelut:
- Asiakaspysäköinti
- Aulapalvelut
- Kokoustilat
- Pysäköintihalli
- Pyöräparkki
Yhteyshenkilö:
Mikko Ranta
mikko.ranta@hausala.fi
050 360 6500
mikko.ranta@hausala.fi
050 360 6500
