Vuokrataan - KOy Helsingin Tyynenmerenkatu 3
Tyynenmerenkatu 3, 00220 Helsinki, Jätkäsaari
Valoisa katutason toimitila Jätkänsaaresta!
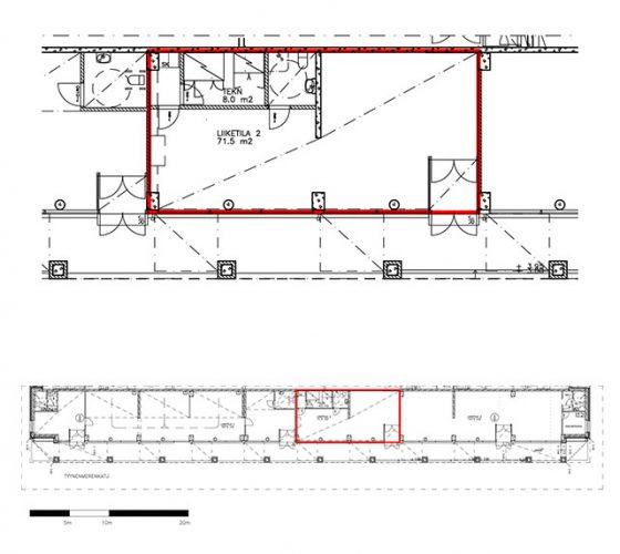
Nyt vuokrattavana heti vapaa, 71,5 m² kokoinen toimitila näkyvällä paikalla Helsingin Jätkänsaaresta. Tämä katutason tila sijaitsee asuin- ja liikekiinteistön kivijalassa, hyvien kulkuyhteyksien ja urbaanin elämän keskellä.
Kohteen sijainti on erinomainen. Lyhyen kävelymatkan päässä löytyvät niin raitiovaunu- ja bussipysäkit kuin Ruoholahden metroasema. Tila avautuu vilkkaalle kadulle, mikä tarjoaa hyvän näkyvyyden ja saavutettavuuden niin asiakkaille kuin työntekijöillekin. Keskustan palvelut, kulttuuritarjonta ja tiivis kaupunkirakenne ovat kaikki käden ulottuvilla, mikä tekee arjesta sujuvaa ja tehokasta.
Tämä toimistotila sopii erinomaisesti pienelle yritykselle tai palveluntarjoajalle, joka arvostaa keskeistä sijaintia ja helppoa saavutettavuutta. Tartu tilaisuuteen ja tule paikan päälle tutustumaan. Varaa esittely jo tänään!
Nyt vuokrattavana heti vapaa, 71,5 m² kokoinen toimitila näkyvällä paikalla Helsingin Jätkänsaaresta. Tämä katutason tila sijaitsee asuin- ja liikekiinteistön kivijalassa, hyvien kulkuyhteyksien ja urbaanin elämän keskellä.
Kohteen sijainti on erinomainen. Lyhyen kävelymatkan päässä löytyvät niin raitiovaunu- ja bussipysäkit kuin Ruoholahden metroasema. Tila avautuu vilkkaalle kadulle, mikä tarjoaa hyvän näkyvyyden ja saavutettavuuden niin asiakkaille kuin työntekijöillekin. Keskustan palvelut, kulttuuritarjonta ja tiivis kaupunkirakenne ovat kaikki käden ulottuvilla, mikä tekee arjesta sujuvaa ja tehokasta.
Tämä toimistotila sopii erinomaisesti pienelle yritykselle tai palveluntarjoajalle, joka arvostaa keskeistä sijaintia ja helppoa saavutettavuutta. Tartu tilaisuuteen ja tule paikan päälle tutustumaan. Varaa esittely jo tänään!
Kohteen tiedot
Pinta-ala:
71 m²
Rakennusvuosi:
2008
Kerros:
Katutaso
Yhteyshenkilö:

Mikko Ranta
mikko.ranta@hausala.fi
050 360 6500
mikko.ranta@hausala.fi
050 360 6500

Mika Savikko
mika.savikko@hausala.fi
050 472 7077
mika.savikko@hausala.fi
050 472 7077