Vuokrataan - KOy Mäkelän Talliosake 2, tilanro. 16 - Parvi, wc
Tölkkimäenkuja 3, 13300 Hämeenlinna, Mäkelä
Etsitkö todella siistiä, helposti saavutettavaa ja muuntautuvaa tilaa yritystoimintaan, varastointiin tai harrastusporukalle?
Nyt vuokrattavana Hämeenlinnan Tiiriöstä 51 m² moderni toimitila. Tämä uudenveroinen ja monikäyttöinen tila soveltuu monenlaisten yritysten tukikohdaksi, varastoksi, harrastetilaksi tai moottoriajoneuvojen huolto-/säilytystilaksi. Tila on heti vapaa vuokrattavaksi.
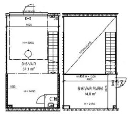
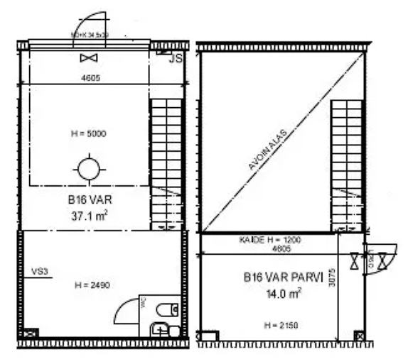
Tilan mitat ovat pituus 8,15 m × leveys 4,60 m × korkeus 5,00 m. Tilan lattiapinta- ala on 37 m² (sisältäen pienen wc- tilan) ja lisäksi tilassa on 14 m² parvi. Tilaan on sähkökäyttöinen nosto-ovi (L 3,45 m × K 3,90 m) erillisellä käyntiovella.
Kohde on varusteltu monipuolista käyttöä ajatellen: roiskevesitiivis epoksipinnoitettu lattia, koneellinen poistoilmanvaihto, öljyn- ja hiekanerotuskaivo sekä voimavirta. Tila on sähkölämmitteinen, ja vuokralainen tekee siihen oman sähkösopimuksen. Kiinteistöllä on valaistu ja asfaltoitu piha sekä kameravalvonta.
Vakuus on kahden kuukauden vuokraa vastaava määrä. Yritysasiakkaille vuokraan lisätään alv 25,5 %. Luottotiedot tarkistetaan.
KOy Mäkelän Talliosake 2 sijaitsee Hämeenlinnan Tiiriössä näkyvällä paikalla Helsinki-Tampere-moottoritien varrella. Moottoritien liittymään on ajoaika vain noin 3 minuuttia. Lähialueen toimintaanne palvelevat liikkeet sijaitsevat lähes kivenheiton päässä.
Kysy rohkeasti lisätietoja ja sovitaan käynti kohteella jo tänään!
Nyt vuokrattavana Hämeenlinnan Tiiriöstä 51 m² moderni toimitila. Tämä uudenveroinen ja monikäyttöinen tila soveltuu monenlaisten yritysten tukikohdaksi, varastoksi, harrastetilaksi tai moottoriajoneuvojen huolto-/säilytystilaksi. Tila on heti vapaa vuokrattavaksi.
Tilan mitat ovat pituus 8,15 m × leveys 4,60 m × korkeus 5,00 m. Tilan lattiapinta- ala on 37 m² (sisältäen pienen wc- tilan) ja lisäksi tilassa on 14 m² parvi. Tilaan on sähkökäyttöinen nosto-ovi (L 3,45 m × K 3,90 m) erillisellä käyntiovella.
Kohde on varusteltu monipuolista käyttöä ajatellen: roiskevesitiivis epoksipinnoitettu lattia, koneellinen poistoilmanvaihto, öljyn- ja hiekanerotuskaivo sekä voimavirta. Tila on sähkölämmitteinen, ja vuokralainen tekee siihen oman sähkösopimuksen. Kiinteistöllä on valaistu ja asfaltoitu piha sekä kameravalvonta.
Vakuus on kahden kuukauden vuokraa vastaava määrä. Yritysasiakkaille vuokraan lisätään alv 25,5 %. Luottotiedot tarkistetaan.
KOy Mäkelän Talliosake 2 sijaitsee Hämeenlinnan Tiiriössä näkyvällä paikalla Helsinki-Tampere-moottoritien varrella. Moottoritien liittymään on ajoaika vain noin 3 minuuttia. Lähialueen toimintaanne palvelevat liikkeet sijaitsevat lähes kivenheiton päässä.
Kysy rohkeasti lisätietoja ja sovitaan käynti kohteella jo tänään!
Kohteen tiedot
Vuokrapyyntö:
590 € /kk
Pinta-ala:
51 m²
Kerros:
Katutaso
Yhteyshenkilö:

Mikko Ranta
mikko.ranta@hausala.fi
050 360 6500
mikko.ranta@hausala.fi
050 360 6500

Mika Savikko
mika.savikko@hausala.fi
050 472 7077
mika.savikko@hausala.fi
050 472 7077