Vuokrataan - Hämeenkatu 9
Hämeenkatu 9, 33100 Tampere, Keskusta
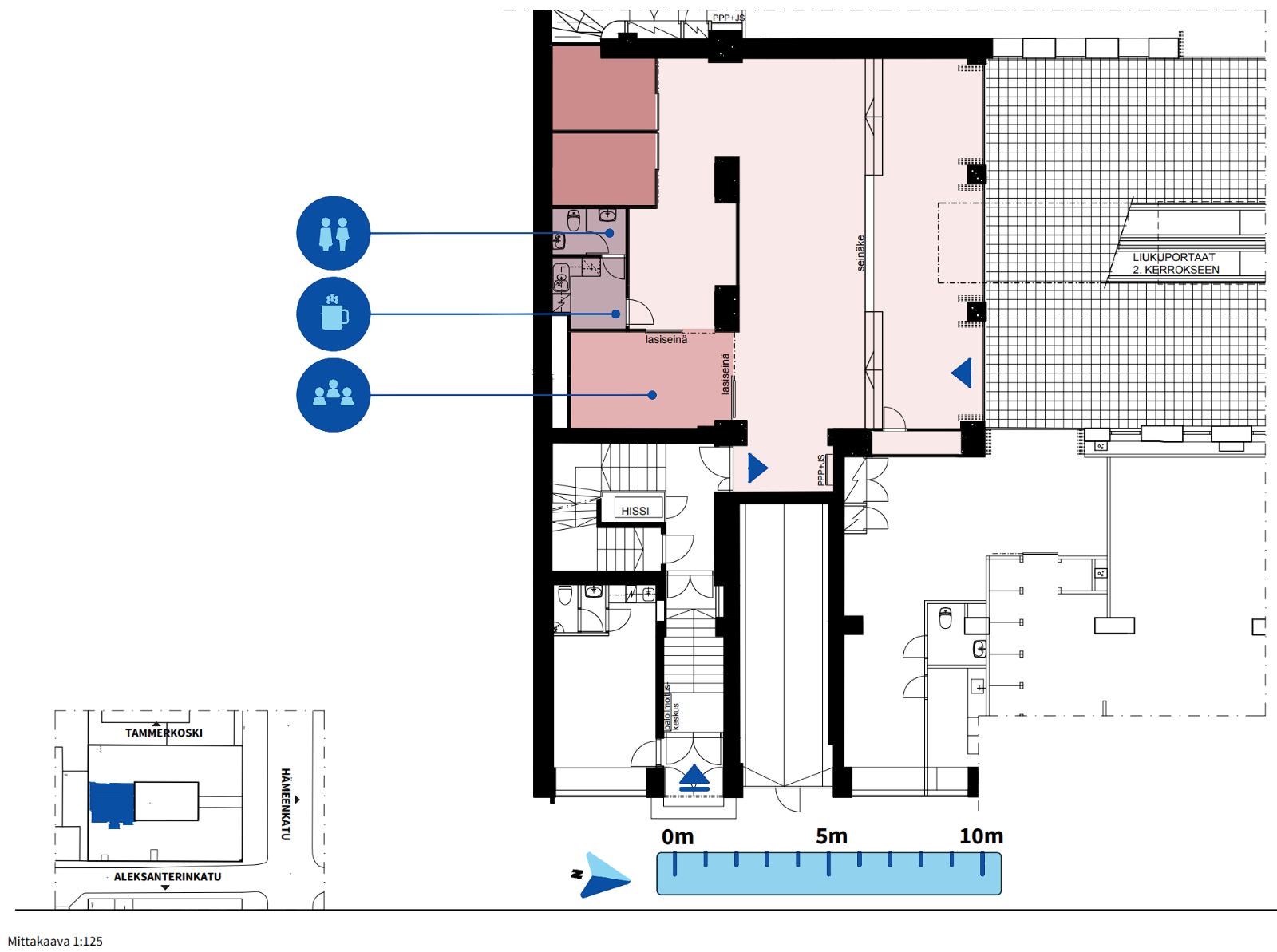
Vuokrataan Tampereen keskustasta Hämeenkatu 9 sisäpihalta 169 m² liike-/toimistotila.
Tila koostuu avotilasta, työ-/neuvotteluhuoneista sekä erillisestä keittiöllisestä taukotilasta. Tilaa voidaan muokata tarpeiden mukaisesti.
Keskeisen sijaintinsa ansiosta kiinteistöön on helppo saapua ja kaikki keskustan palvelut ovat lähettyvillä. Ratikka ja bussit kulkevat aivan kiinteistön kupeessa, ja Tampereen rautatieasemalle on vain lyhyt kävelymatka. Kohteesta on hissiyhteys P-hämppiin, jossa tarjolla parkkitilaa.
Kysy rohkeasti lisätietoja ja sovitaan käynti kohteella jo tänään!
Tila koostuu avotilasta, työ-/neuvotteluhuoneista sekä erillisestä keittiöllisestä taukotilasta. Tilaa voidaan muokata tarpeiden mukaisesti.
Keskeisen sijaintinsa ansiosta kiinteistöön on helppo saapua ja kaikki keskustan palvelut ovat lähettyvillä. Ratikka ja bussit kulkevat aivan kiinteistön kupeessa, ja Tampereen rautatieasemalle on vain lyhyt kävelymatka. Kohteesta on hissiyhteys P-hämppiin, jossa tarjolla parkkitilaa.
Kysy rohkeasti lisätietoja ja sovitaan käynti kohteella jo tänään!
Kohteen tiedot
Pinta-ala:
169 m²
Kerros:
Katutaso
Yhteyshenkilö:

Mika Savikko
mika.savikko@hausala.fi
050 472 7077
mika.savikko@hausala.fi
050 472 7077

Mikko Ranta
mikko.ranta@hausala.fi
050 360 6500
mikko.ranta@hausala.fi
050 360 6500