Vuokrataan - Malminkatu 28
Malminkatu 28, 00100 Helsinki, Kamppi
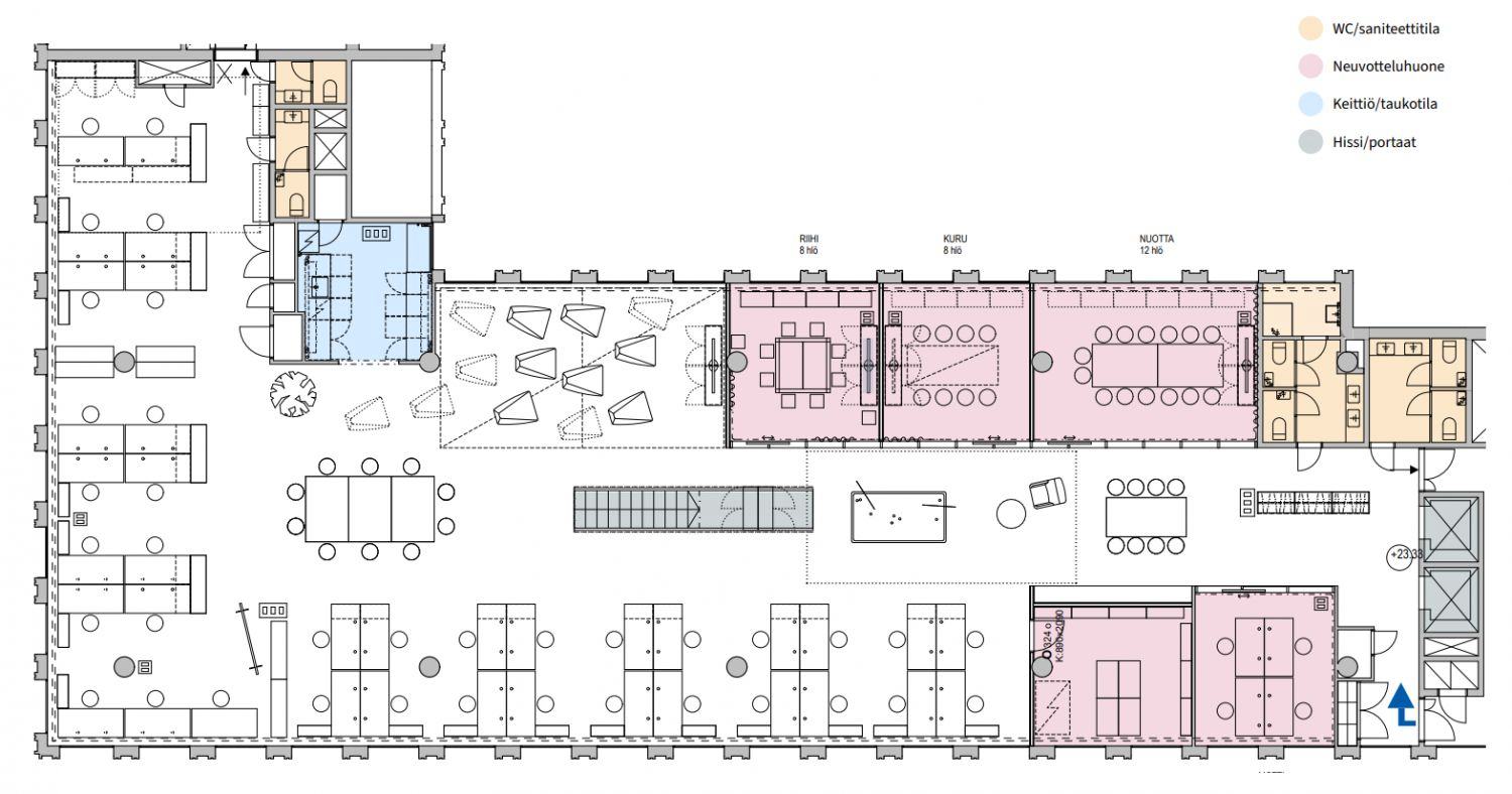
Vuokrataan Helsingin Kampista kolmannen kerroksen 525 m² toimistotila.
Toimiston pohjakuva on esimerkkiratkaisu! Avaraa avokonttori tilaa muokataan tarpeiden mukaisesti.
Keskeisen sijaintinsa ansiosta kiinteistöön on helppo saapua ja kaikki Kampin palvelut ovat lähettyvillä. Metro-/bussiasema sijaitsee aivan kiinteistön kupeessa, ja Helsingin rautatieasemalle on vain lyhyt kävelymatka.
Kiinteistöstä löytyy parkkipaikkoja autolle sekä polkupyörille. Forumin parkkihalli on vieressä.
Kysy rohkeasti lisätietoja ja sovitaan käynti kohteella jo tänään!
Toimiston pohjakuva on esimerkkiratkaisu! Avaraa avokonttori tilaa muokataan tarpeiden mukaisesti.
Keskeisen sijaintinsa ansiosta kiinteistöön on helppo saapua ja kaikki Kampin palvelut ovat lähettyvillä. Metro-/bussiasema sijaitsee aivan kiinteistön kupeessa, ja Helsingin rautatieasemalle on vain lyhyt kävelymatka.
Kiinteistöstä löytyy parkkipaikkoja autolle sekä polkupyörille. Forumin parkkihalli on vieressä.
Kysy rohkeasti lisätietoja ja sovitaan käynti kohteella jo tänään!
Kohteen tiedot
Pinta-ala:
525 m²
Kerros:
3
Yhteyshenkilö:

Mika Savikko
mika.savikko@hausala.fi
050 472 7077
mika.savikko@hausala.fi
050 472 7077

Mikko Ranta
mikko.ranta@hausala.fi
050 360 6500
mikko.ranta@hausala.fi
050 360 6500