Vuokrataan - Bulevardi 7
Bulevardi 7, 00120 Helsinki, Kamppi
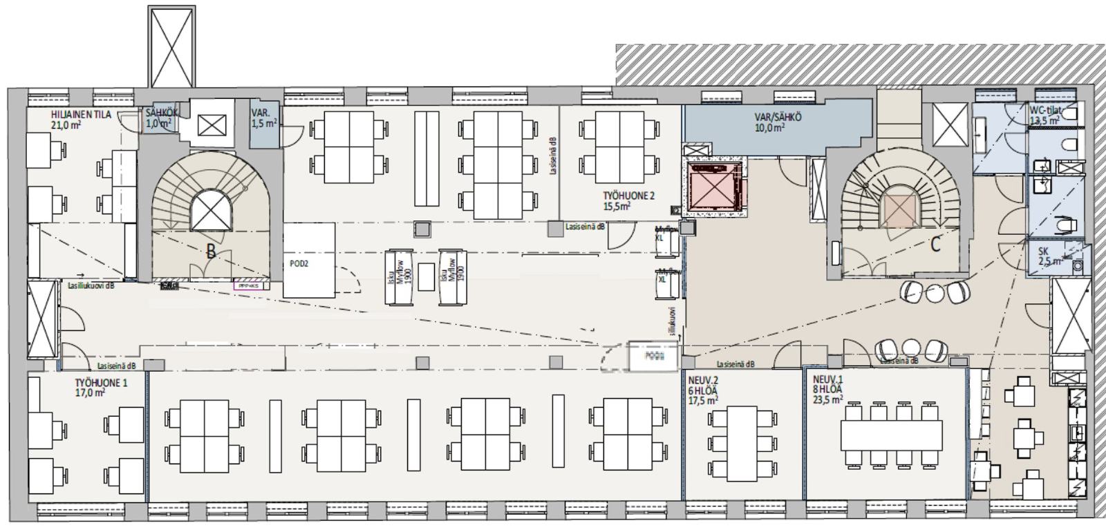
Vuokrataan Helsingin Kampista neljännen kerroksen 402 m² toimistotila.
Kiinteistö valmistui mittavasta remontista vuonna 2022. Toimistotila on remontoitu ja se viimeistellään vuokralaisen tarpeen mukaisesti.
Keskeisen sijaintinsa ansiosta kiinteistöön on helppo saapua ja kaikki Kampin palvelut ovat lähettyvillä. Raitiovaunut kulkevat aivan kiinteistön kupeessa, ja Kampin metro- sekä bussiasemalle on vain lyhyt kävelymatka.
Kiinteistön palveluina mm. kahvila, parkkihalli ja polkupyöräparkki.
Kysy rohkeasti lisätietoja ja sovitaan käynti kohteella jo tänään!
Kiinteistö valmistui mittavasta remontista vuonna 2022. Toimistotila on remontoitu ja se viimeistellään vuokralaisen tarpeen mukaisesti.
Keskeisen sijaintinsa ansiosta kiinteistöön on helppo saapua ja kaikki Kampin palvelut ovat lähettyvillä. Raitiovaunut kulkevat aivan kiinteistön kupeessa, ja Kampin metro- sekä bussiasemalle on vain lyhyt kävelymatka.
Kiinteistön palveluina mm. kahvila, parkkihalli ja polkupyöräparkki.
Kysy rohkeasti lisätietoja ja sovitaan käynti kohteella jo tänään!
Kohteen tiedot
Pinta-ala:
402 m²
Kerros:
4
Yhteyshenkilö:

Mika Savikko
mika.savikko@hausala.fi
050 472 7077
mika.savikko@hausala.fi
050 472 7077

Mikko Ranta
mikko.ranta@hausala.fi
050 360 6500
mikko.ranta@hausala.fi
050 360 6500