Vuokrataan - John Stenbergin Ranta 2
John Stenbergin Ranta 2, 00530 Helsinki, Hakaniemi
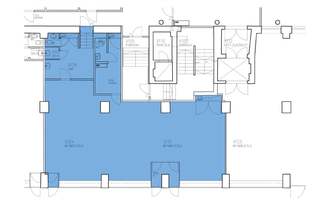
Vuokrataan Helsingin Hakaniemestä katutason 153 m² liiketila.
Tila on näkyvällä paikalla kivijalassa missä runsaasti ohikulkuliikennettä. Tila ei kuitenkaan sovellu ravintolaksi tai kahvilaksi. Toimistoksi taipuu hyvinkin.
Keskeisen sijaintinsa ansiosta kiinteistöön on helppo saapua ja kaikki Hakaniemen palvelut ovat lähettyvillä. Bussit kulkevat aivan kiinteistön kupeessa, ja Helsingin rautatieasemalle on vain lyhyt kävelymatka.
Kiinteistön palveluina mm. aulapalvelut, lounasravintola, kokoustilat sekä kuntosali. Autohallista on vuokrattavissa pysäköintipaikkoja ja sähköautojen latauskin onnistuu.
Kysy rohkeasti lisätietoja ja sovitaan käynti kohteella jo tänään!
Tila on näkyvällä paikalla kivijalassa missä runsaasti ohikulkuliikennettä. Tila ei kuitenkaan sovellu ravintolaksi tai kahvilaksi. Toimistoksi taipuu hyvinkin.
Keskeisen sijaintinsa ansiosta kiinteistöön on helppo saapua ja kaikki Hakaniemen palvelut ovat lähettyvillä. Bussit kulkevat aivan kiinteistön kupeessa, ja Helsingin rautatieasemalle on vain lyhyt kävelymatka.
Kiinteistön palveluina mm. aulapalvelut, lounasravintola, kokoustilat sekä kuntosali. Autohallista on vuokrattavissa pysäköintipaikkoja ja sähköautojen latauskin onnistuu.
Kysy rohkeasti lisätietoja ja sovitaan käynti kohteella jo tänään!
Kohteen tiedot
Pinta-ala:
153 m²
Kerros:
Katutaso
Yhteyshenkilö:

Mika Savikko
mika.savikko@hausala.fi
050 472 7077
mika.savikko@hausala.fi
050 472 7077

Mikko Ranta
mikko.ranta@hausala.fi
050 360 6500
mikko.ranta@hausala.fi
050 360 6500