Vuokrataan - Autokeskuksentie 12
Autokeskuksentie 12, 33960 Pirkkala, Linnakallio
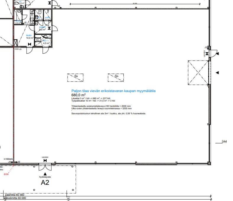
Vuokrataan Pirkkalan Linnakalliosta katutason 735 m² liike-/varasto-/tuotantotila.
Kohteen sijainti on mitä parhain. Ohitustien välittömässä läheisyydessä olevasta kiinteistöstä on nopeat liikenneyhteydet eri puolille Pirkanmaata sekä muualle Suomeen.
Tilat taipuvat käyttäjän tarpeiden mukaan esimerkiksi tuotanto-, varasto-, myynti- tai näyttelytiloiksi.
Kysy lisätietoja tai sovitaan käynti kohteelle jo tänään!
Kohteen sijainti on mitä parhain. Ohitustien välittömässä läheisyydessä olevasta kiinteistöstä on nopeat liikenneyhteydet eri puolille Pirkanmaata sekä muualle Suomeen.
Tilat taipuvat käyttäjän tarpeiden mukaan esimerkiksi tuotanto-, varasto-, myynti- tai näyttelytiloiksi.
Kysy lisätietoja tai sovitaan käynti kohteelle jo tänään!
Kohteen tiedot
Pinta-ala:
735 m²
Kerros:
Katutaso
Yhteyshenkilö:

Mikko Ranta
mikko.ranta@hausala.fi
050 360 6500
mikko.ranta@hausala.fi
050 360 6500

Mika Savikko
mika.savikko@hausala.fi
050 472 7077
mika.savikko@hausala.fi
050 472 7077