Vuokrataan - Technopolis Aviapolis
Teknobulevardi 3-5 E, 00180 Vantaa, Aviapolis
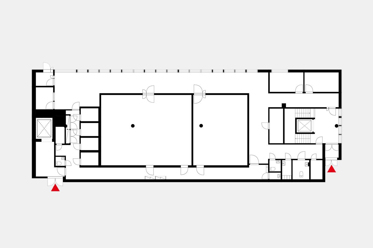
Vuokrataan kokonainen 3800 m² rakennus Technopolis Aviapoliksesta, Vantaalta. Tämä kesällä 2026 vapautuva rakennus koostuu viidestä kerroksesta. Ensimmäinen kerros mukautuu monenlaiseen käyttöön korkean huonekorkeuden ja hyvien lastausmahdollisuuksien takia.
Technopolis Aviapolis sijaitsee Vantaan lentokentän läheisyydessä nopeasti kehittyvällä Aviapoliksen alueella. Tämä kampus tarjoaa modernit, joustavat ja räätälöitävissä olevat toimitilat sekä kattavat palvelut kaiken kokoisille yrityksille, aina pääkonttoritasoon asti! Kampuksen sijainti on erinomainen Helsinki- Vantaan lentokentän läheisyydessä. Nopeat yhteydet Kehäradan, bussien ja autoteiden kautta. Kansainvälinen ja energinen ilmapiiri – ihanteellinen erityisesti kansainvälisesti toimiville yrityksille!
Technopolis Aviapolis helpottaa yrityksesi arkea kattavilla palveluilla mm. ystävällinen aulapalvelu, hyvin varustellut kokoustilat, suosittu ravintola, kahvila ja kuntosali ovat kaikki helposti saatavilla. Lisäksi läheinen Jumbon kauppakeskus tarjoaa monipuoliset lisäpalvelut aivan kampuksen läheisyydessä.
Vastuullisuus on osa koko Technopoliksen toimintafilosofiaa. Se näkyy monella tasolla tälläkin LEED sertifioidulla kiinteistöllä mm. energiatehokkuudessa, vedenkulutuksen vähentämisessä sekä sisäilman laadussa. Lisäksi Technopolis tukee asiakkaiden omia vastuullisuustavoitteita ja tarjoaa asiakkailleen mahdollisuuden raportoida omasta vastuullisuudestaan.
Kysy rohkeasti lisätietoja ja sovitaan käynti kohteella jo tänään!
Technopolis Aviapolis sijaitsee Vantaan lentokentän läheisyydessä nopeasti kehittyvällä Aviapoliksen alueella. Tämä kampus tarjoaa modernit, joustavat ja räätälöitävissä olevat toimitilat sekä kattavat palvelut kaiken kokoisille yrityksille, aina pääkonttoritasoon asti! Kampuksen sijainti on erinomainen Helsinki- Vantaan lentokentän läheisyydessä. Nopeat yhteydet Kehäradan, bussien ja autoteiden kautta. Kansainvälinen ja energinen ilmapiiri – ihanteellinen erityisesti kansainvälisesti toimiville yrityksille!
Technopolis Aviapolis helpottaa yrityksesi arkea kattavilla palveluilla mm. ystävällinen aulapalvelu, hyvin varustellut kokoustilat, suosittu ravintola, kahvila ja kuntosali ovat kaikki helposti saatavilla. Lisäksi läheinen Jumbon kauppakeskus tarjoaa monipuoliset lisäpalvelut aivan kampuksen läheisyydessä.
Vastuullisuus on osa koko Technopoliksen toimintafilosofiaa. Se näkyy monella tasolla tälläkin LEED sertifioidulla kiinteistöllä mm. energiatehokkuudessa, vedenkulutuksen vähentämisessä sekä sisäilman laadussa. Lisäksi Technopolis tukee asiakkaiden omia vastuullisuustavoitteita ja tarjoaa asiakkailleen mahdollisuuden raportoida omasta vastuullisuudestaan.
Kysy rohkeasti lisätietoja ja sovitaan käynti kohteella jo tänään!
Kohteen tiedot
Pinta-ala:
3 800 m²
Kerros:
1-5
Yhteyshenkilö:

Mika Savikko
mika.savikko@hausala.fi
050 472 7077
mika.savikko@hausala.fi
050 472 7077

Matti Pöyhiä
matti.poyhia@hausala.fi
040 722 6650
matti.poyhia@hausala.fi
040 722 6650