Vuokrataan - Tikkurilan Kauppatalo
Peltolantie 2, 01300 Vantaa, Tikkurila
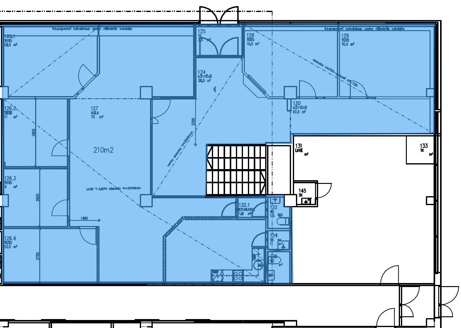
Vuokrataan katutason 210 m² liiketila Tikkurilan Kauppatalosta. Tila koostuu aula/odotustilasta sekä useasta erikokoisesta huoneesta. Tilassa on myös 2kpl wc-tiloja sekä taukohuone ja keittiö. Tila on vapaa 1.12.2025 alkaen.
Kiinteistön sijainti on hyvä. Tikkurilan rautatieasemalta on noin 10 min kävelymatka ja lähimmälle bussipysäkille ainoastaan noin 150 m. Kiinteistön edessä on parkkialue, joka tarjoaa pysäköintitilaa asiakkaille sekä työntekijöille.
Kysy lisätietoja tai sovitaan käynti kohteelle jo tänään!
Kiinteistön sijainti on hyvä. Tikkurilan rautatieasemalta on noin 10 min kävelymatka ja lähimmälle bussipysäkille ainoastaan noin 150 m. Kiinteistön edessä on parkkialue, joka tarjoaa pysäköintitilaa asiakkaille sekä työntekijöille.
Kysy lisätietoja tai sovitaan käynti kohteelle jo tänään!
Kohteen tiedot
Pinta-ala:
210 m²
Rakennusvuosi:
1989
Kerros:
Katutaso
Yhteyshenkilö:

Matti Pöyhiä
matti.poyhia@hausala.fi
040 722 6650
matti.poyhia@hausala.fi
040 722 6650

Mika Savikko
mika.savikko@hausala.fi
050 472 7077
mika.savikko@hausala.fi
050 472 7077