Vuokrataan - Koivuhaan Yrityskeskus
Puutarhatie 20, 01300 Vantaa, Koivuhaka
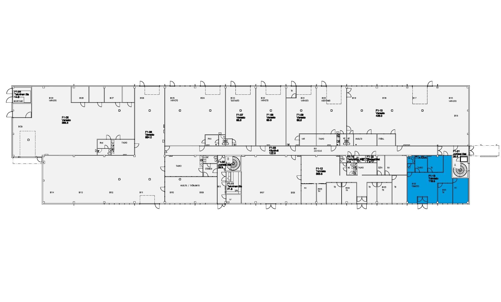
Vuokrataan katutason siisti 119,5 m² liike-/toimistotila Vantaan Koivuhaasta. Tämä rakennuksen kulmatila koostuu avotilasta, kahdesta työhuoneesta, neuvotteluhuoneesta sekä tauko- ja keittiötiloista. Tilassa on myös oma wc. Vapautuminen sopimuksen mukaan/ viimeistään 31.7.2025.
Tämä Tikkurilantien viereen v. 2010 valmistunut moderni kiinteistö hyödyntää aurinkoenergiaa omien aurinkokennojensa avulla. Kiinteistön pihalla on pysäköintialue, jolla on tarjolla sopimuspysäköintipaikkoja ja sähköautojen latauspisteitä.
Lähimmälle bussipysäkille on matkaa 100 m ja kiinteistöllä toimii suosittu lounasravintola Taimi. Kulkuyhteydet Kehä III:lle ovat loistavat.
Kysy lisätietoja tai sovitaan käynti kohteelle jo tänään!
Tämä Tikkurilantien viereen v. 2010 valmistunut moderni kiinteistö hyödyntää aurinkoenergiaa omien aurinkokennojensa avulla. Kiinteistön pihalla on pysäköintialue, jolla on tarjolla sopimuspysäköintipaikkoja ja sähköautojen latauspisteitä.
Lähimmälle bussipysäkille on matkaa 100 m ja kiinteistöllä toimii suosittu lounasravintola Taimi. Kulkuyhteydet Kehä III:lle ovat loistavat.
Kysy lisätietoja tai sovitaan käynti kohteelle jo tänään!
Kohteen tiedot
Pinta-ala:
119,5 m²
Rakennusvuosi:
2010
Kerros:
Katutaso
Yhteyshenkilö:

Matti Pöyhiä
matti.poyhia@hausala.fi
040 722 6650
matti.poyhia@hausala.fi
040 722 6650

Mika Savikko
mika.savikko@hausala.fi
050 472 7077
mika.savikko@hausala.fi
050 472 7077