Vuokrataan - As Oy Helsingin Trokarinlinna
Sörnäistenlaituri 3, 00540 Helsinki, Kalasatama
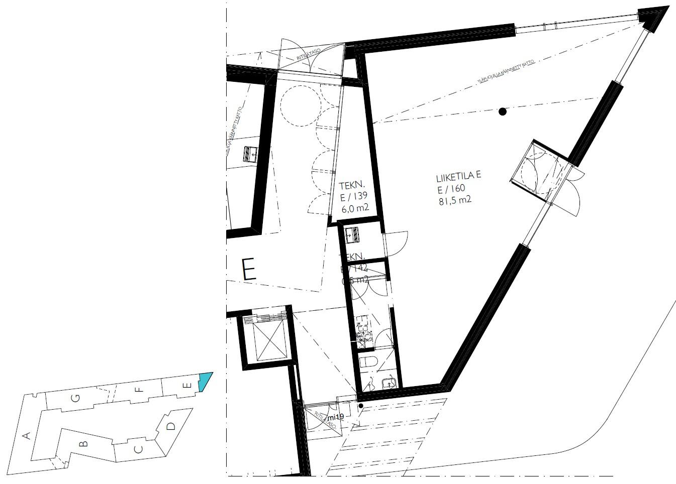
Vuokrataan hieno 81,5 m² liiketila Kalasatamasta, merinäköalalla! Tila on pääosin avotilaa varustettuna pienellä keittiöllä sekä wc- tilalla.
Kauppakeskus REDIn kaikenkattavat palvelut löytyvät parin minuutin kävelymatkan päässä. Kohteeseen on erinomaiset liikenneyhteydet; Kalasataman ja Pasilan välillä liikennöinnin aloittanut raitiovaunu, metro sekä linja- autot ympäri Helsinkiä.
Kysy lisätietoja tai sovitaan käynti kohteelle jo tänään!
Kauppakeskus REDIn kaikenkattavat palvelut löytyvät parin minuutin kävelymatkan päässä. Kohteeseen on erinomaiset liikenneyhteydet; Kalasataman ja Pasilan välillä liikennöinnin aloittanut raitiovaunu, metro sekä linja- autot ympäri Helsinkiä.
Kysy lisätietoja tai sovitaan käynti kohteelle jo tänään!
Kohteen tiedot
Pinta-ala:
81,5 m²
Rakennusvuosi:
2013
Kerros:
Katutaso
Yhteyshenkilö:

Mika Savikko
mika.savikko@hausala.fi
050 472 7077
mika.savikko@hausala.fi
050 472 7077

Mikko Ranta
mikko.ranta@hausala.fi
050 360 6500
mikko.ranta@hausala.fi
050 360 6500