Vuokrataan - As Oy Helsingin Sitadelli 6
Bertha Pauligin katu 5, 00990 Helsinki, Vuosaari
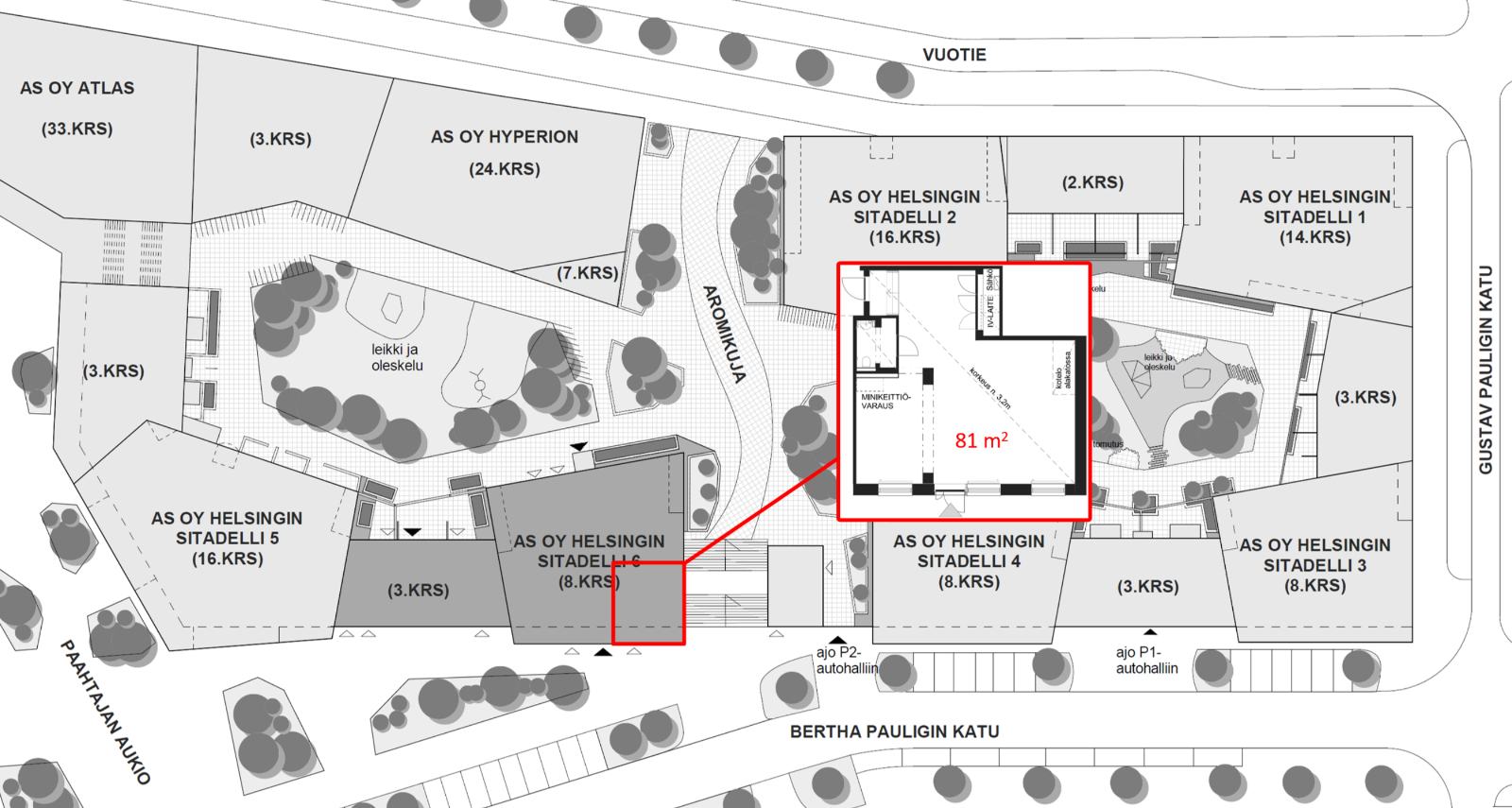
Vuokrataan Helsingin Vuosaaresta katutason 81 m² liiketila, LH 2.
Kohde on juuri valmistunut! Sitadelli 6 on 6. kerroksinen asuinkerrostalo 16. kerroksisen tornitalon viereltä alueella, mikä kehittyy ja kasvaa koko ajan. Tule varaamaan toimitilasi kasvun keskeltä.
Kysy rohkeasti lisätietoja ja sovitaan käynti kohteella jo tänään!
Kohde on juuri valmistunut! Sitadelli 6 on 6. kerroksinen asuinkerrostalo 16. kerroksisen tornitalon viereltä alueella, mikä kehittyy ja kasvaa koko ajan. Tule varaamaan toimitilasi kasvun keskeltä.
Kysy rohkeasti lisätietoja ja sovitaan käynti kohteella jo tänään!
Kohteen tiedot
Pinta-ala:
81 m²
Rakennusvuosi:
2025
Kerros:
Katutaso
Yhteyshenkilö:

Mika Savikko
mika.savikko@hausala.fi
050 472 7077
mika.savikko@hausala.fi
050 472 7077

Mikko Ranta
mikko.ranta@hausala.fi
050 360 6500
mikko.ranta@hausala.fi
050 360 6500