Vuokrataan - Porin Herralahdenraitti 1
Herralahdenraitti 1, 28130 Pori, Herralahti
Vuokrataan uutta vastaava katutason 171 m² liiketila Herralahdesta, Porin Askokylän alueelta. Tämä aiemmin lounasravintolana toiminut monikäyttöinen liiketila sopii moneen erilaiseen käyttöön, esimerkiksi ravintolaksi, kahvilaksi tai myymäläksi!
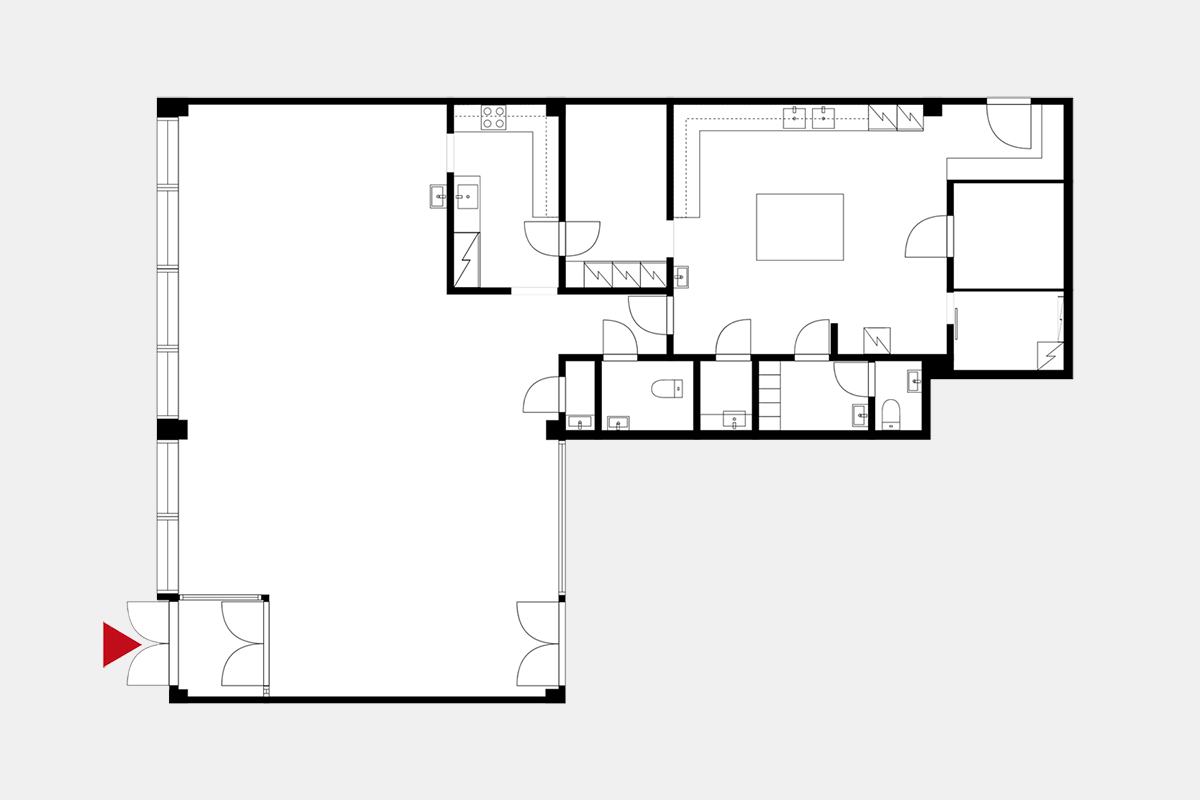
Tämä liiketilakokonaisuus sisältää 25 paikkaisen asiakastilan lisäksi keittiön, kylmiön, toimistohuoneen ja sosiaalitilat. Tilan näyteikkunat avautuvat suoraan rakennuksen eteen, johon myöskin auto on mahdollista pysäköidä. Vieressä sijaitsee kaksi päivittäistavarakauppaa, mikä tuo alueelle jatkuvaa asiakasliikennettä.
Tässä on valmis paketti liiketoimintaasi! Ota yhteyttä ja sovitaan näyttö jo tänään.
Tämä liiketilakokonaisuus sisältää 25 paikkaisen asiakastilan lisäksi keittiön, kylmiön, toimistohuoneen ja sosiaalitilat. Tilan näyteikkunat avautuvat suoraan rakennuksen eteen, johon myöskin auto on mahdollista pysäköidä. Vieressä sijaitsee kaksi päivittäistavarakauppaa, mikä tuo alueelle jatkuvaa asiakasliikennettä.
Tässä on valmis paketti liiketoimintaasi! Ota yhteyttä ja sovitaan näyttö jo tänään.
Kohteen tiedot
Pinta-ala:
171 m²
Kerros:
Katutaso
Soveltuvuus:
- Kahvila
- Ravintola
Kiinteistön palvelut:
- Ravintola
Yhteyshenkilö:
Mikko Ranta
mikko.ranta@hausala.fi
050 360 6500
mikko.ranta@hausala.fi
050 360 6500
