Vuokrataan - Sörnäisten rantatie 31
Sörnäinen, 00500 Helsinki
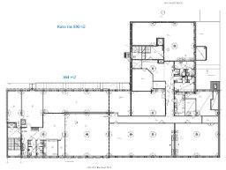
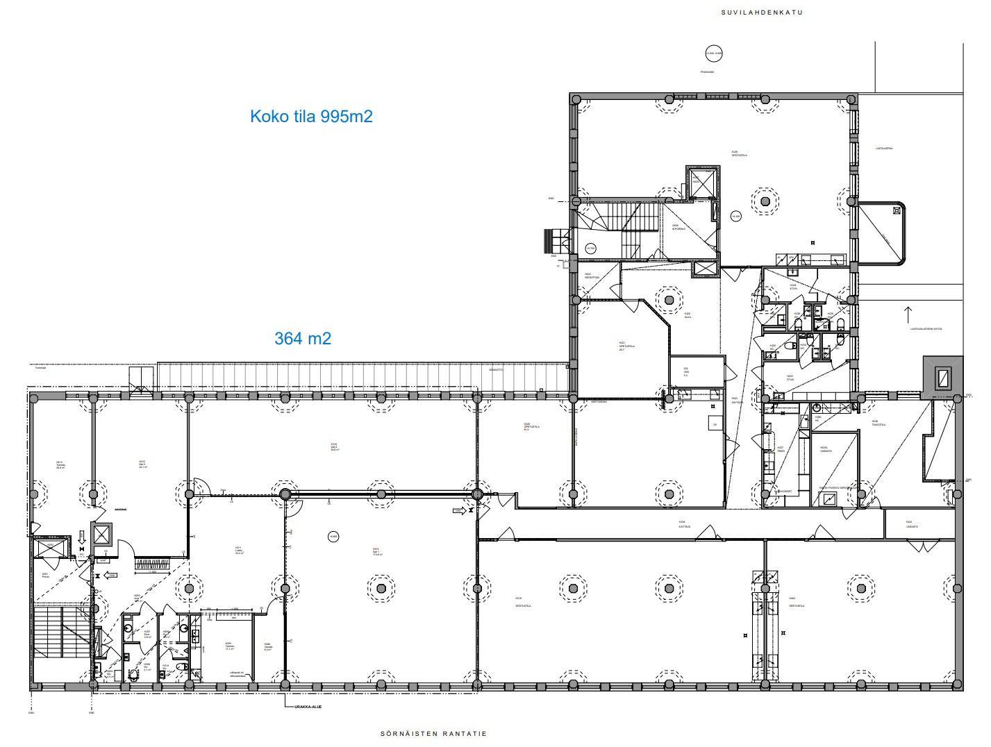
Vuokrataan Sörnäisissä toisen kerroksen 992 m² toimisto tai liiketila.
Monipuolista toimitilaa vaikuttavissa puitteissa
Sörnäisten rantatie 31 tarjoaa muuntautuvaa toimitilaa erilaisille toimijoille vaikuttavassa ja persoonallisessa ympäristössä. Tilat soveltuvat erityisesti liikunta-alan yrityksille sekä muille toimijoille, jotka arvostavat inspiroivaa ja käytännöllistä työympäristöä.
Rakennus on sopivasti rosoinen, omanlaisensa helmi. Tämä kohde on nähtävä paikan päällä.
Sijainti on erinomainen: lähellä Kauppakeskus REDIä ja hyvien julkisten yhteyksien äärellä. Sekä Sörnäisten että Kalasataman metroasemalle on vain muutaman sadan metrin matka. Kiinteistön vieressä sijaitseva pysäköintihalli palvelee vuokralaisia.
Kysy rohkeasti lisätietoja ja sovitaan käynti kohteella jo tänään!
Monipuolista toimitilaa vaikuttavissa puitteissa
Sörnäisten rantatie 31 tarjoaa muuntautuvaa toimitilaa erilaisille toimijoille vaikuttavassa ja persoonallisessa ympäristössä. Tilat soveltuvat erityisesti liikunta-alan yrityksille sekä muille toimijoille, jotka arvostavat inspiroivaa ja käytännöllistä työympäristöä.
Rakennus on sopivasti rosoinen, omanlaisensa helmi. Tämä kohde on nähtävä paikan päällä.
Sijainti on erinomainen: lähellä Kauppakeskus REDIä ja hyvien julkisten yhteyksien äärellä. Sekä Sörnäisten että Kalasataman metroasemalle on vain muutaman sadan metrin matka. Kiinteistön vieressä sijaitseva pysäköintihalli palvelee vuokralaisia.
Kysy rohkeasti lisätietoja ja sovitaan käynti kohteella jo tänään!
Kohteen tiedot
Pinta-ala:
995 m²
Rakennusvuosi:
1951
Kerros:
2
Autopaikat:
3
