Vuokrataan - Tikkurilan Silkkitehtaan kortteli
Silkkitehtaantie 5, 01300 Vantaa, Tikkurila
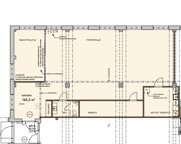
Vuokrataan Vantaan Tikkurilasta katutason 165 m² toimistotila.
Toimisto koostuu avarasta avokonttoritilasta, neuvottelutilasta, erillisestä keittiöllisestä taukotilasta sekä omista wc tiloista.
Keskeisen sijaintinsa ansiosta kiinteistöön on helppo saapua ja kaikki Tikkurilan palvelut ovat lähettyvillä. Kehä III kulkee lähellä ja Tikkurilan rautatieasema on kävelymatkan päässä.
Kiinteistön palveluina mm. neuvotteluhuoneita, pyöräparkki, suihku- ja pukuhuonetilat sekä parkkipaikkoja pihalla, että parkkihallissa. Lounasravintoloita on useita lähistöllä.
Kysy rohkeasti lisätietoja ja sovitaan käynti kohteella jo tänään!
Toimisto koostuu avarasta avokonttoritilasta, neuvottelutilasta, erillisestä keittiöllisestä taukotilasta sekä omista wc tiloista.
Keskeisen sijaintinsa ansiosta kiinteistöön on helppo saapua ja kaikki Tikkurilan palvelut ovat lähettyvillä. Kehä III kulkee lähellä ja Tikkurilan rautatieasema on kävelymatkan päässä.
Kiinteistön palveluina mm. neuvotteluhuoneita, pyöräparkki, suihku- ja pukuhuonetilat sekä parkkipaikkoja pihalla, että parkkihallissa. Lounasravintoloita on useita lähistöllä.
Kysy rohkeasti lisätietoja ja sovitaan käynti kohteella jo tänään!
Kohteen tiedot
Pinta-ala:
165 m²
Kerros:
Katutaso
Yhteyshenkilö:

Matti Pöyhiä
matti.poyhia@hausala.fi
040 722 6650
matti.poyhia@hausala.fi
040 722 6650

Mikko Ranta
mikko.ranta@hausala.fi
050 360 6500
mikko.ranta@hausala.fi
050 360 6500