Vuokrataan - Tikkurilan Silkkitehtaan kortteli
Silkkitehtaantie 5, 01300 Vantaa, Tikkurila
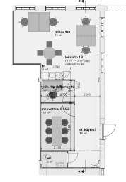
Vuokrataan Vantaan Tikkurilasta katutason 74 m² toimistotila.
Toimisto koostuu avokonttoritilasta taukokeittiöllä, kahdesta työ-/neuvottelutilasta sekä omasta wc tilasta. Tilan yhteydessä on myös 5 m² parvi kevyeen varastointiin.
Keskeisen sijaintinsa ansiosta kiinteistöön on helppo saapua ja kaikki Tikkurilan palvelut ovat lähettyvillä. Kehä III kulkee lähellä ja Tikkurilan rautatieasema on kävelymatkan päässä.
Kiinteistön palveluina mm. neuvotteluhuoneita, pyöräparkki, suihku- ja pukuhuonetilat sekä parkkipaikkoja pihalla, että parkkihallissa. Lounasravintoloita on useita lähistöllä.
Kysy rohkeasti lisätietoja ja sovitaan käynti kohteella jo tänään!
Toimisto koostuu avokonttoritilasta taukokeittiöllä, kahdesta työ-/neuvottelutilasta sekä omasta wc tilasta. Tilan yhteydessä on myös 5 m² parvi kevyeen varastointiin.
Keskeisen sijaintinsa ansiosta kiinteistöön on helppo saapua ja kaikki Tikkurilan palvelut ovat lähettyvillä. Kehä III kulkee lähellä ja Tikkurilan rautatieasema on kävelymatkan päässä.
Kiinteistön palveluina mm. neuvotteluhuoneita, pyöräparkki, suihku- ja pukuhuonetilat sekä parkkipaikkoja pihalla, että parkkihallissa. Lounasravintoloita on useita lähistöllä.
Kysy rohkeasti lisätietoja ja sovitaan käynti kohteella jo tänään!
Kohteen tiedot
Pinta-ala:
74 m²
Kerros:
Katutaso
Yhteyshenkilö:

Matti Pöyhiä
matti.poyhia@hausala.fi
040 722 6650
matti.poyhia@hausala.fi
040 722 6650

Mikko Ranta
mikko.ranta@hausala.fi
050 360 6500
mikko.ranta@hausala.fi
050 360 6500