Vuokrataan - Gigahermia
Visiokatu 6, 33720 Tampere, Hervanta
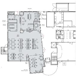
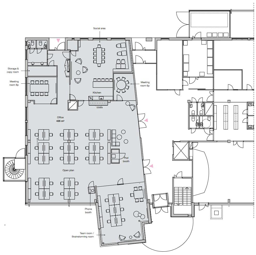
Vuokrataan Tampereen Hervannasta toisen kerroksen 810 m² toimistotila.
Toimisto koostuu avarasta avokonttoritilasta, useista työ-/neuvotteluhuoneista ja erillisestä taukotilasta keittiöllä.
Keskeisen sijaintinsa ansiosta kiinteistöön on helppo saapua ja kaikki Hervannan palvelut ovat lähettyvillä. Ratikka ja bussi pysäkit ovat aivan kiinteistön vierellä.
Kiinteistön palveluina mm. kuntosali, pyöräparkki, parkkipaikkoja pihalla, sekä viereisessä parkkihallissa. Lounasravintoloita on useita lähistöllä.
Kysy rohkeasti lisätietoja ja sovitaan käynti kohteella jo tänään!
Toimisto koostuu avarasta avokonttoritilasta, useista työ-/neuvotteluhuoneista ja erillisestä taukotilasta keittiöllä.
Keskeisen sijaintinsa ansiosta kiinteistöön on helppo saapua ja kaikki Hervannan palvelut ovat lähettyvillä. Ratikka ja bussi pysäkit ovat aivan kiinteistön vierellä.
Kiinteistön palveluina mm. kuntosali, pyöräparkki, parkkipaikkoja pihalla, sekä viereisessä parkkihallissa. Lounasravintoloita on useita lähistöllä.
Kysy rohkeasti lisätietoja ja sovitaan käynti kohteella jo tänään!
Kohteen tiedot
Pinta-ala:
810 m²
Kerros:
2/4
Yhteyshenkilö:

Mikko Ranta
mikko.ranta@hausala.fi
050 360 6500
mikko.ranta@hausala.fi
050 360 6500

Mika Savikko
mika.savikko@hausala.fi
050 472 7077
mika.savikko@hausala.fi
050 472 7077