Vuokrataan - Esterinportti 2
Esterinportti 2, 00240 Helsinki, Länsi-Pasila
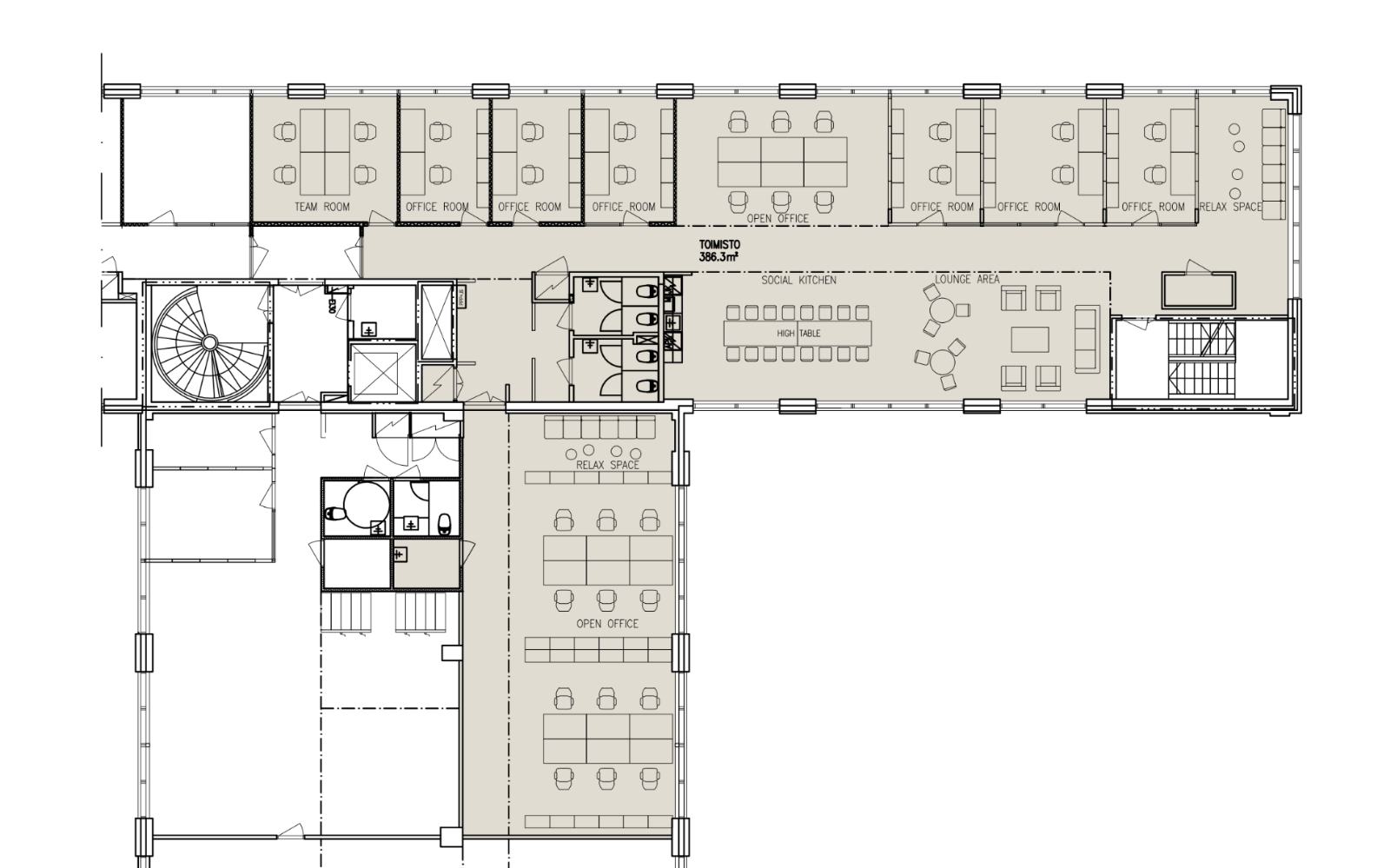
Vuokrataan Helsingin Pasilasta viidennen kerroksen n. 386 m² remontoitava toimistotila.
Toimisto ehdotus koostuu puoliksi avokonttoritilasta ja työ-/neuvottelutiloista. Lisäksi keittiöllisestä lounge alueesta sekä omista wc-tiloista. Tilaa on mahdollista muunnella vuokralaisen tarpeiden mukaan ja vuokralaisella on mahdollisuus vaikuttaa materiaalivalintoihin.
Keskeisen sijaintinsa ansiosta kiinteistöön on helppo saapua ja kaikki Pasilan palvelut ovat lähettyvillä. Myös raitiovaunut kulkevat aivan kiinteistön kupeessa, ja Pasilan rautatieasemalle on vain lyhyt kävelymatka.
Kiinteistön palveluina mm. aulapalvelut, neuvotteluhuoneita, pyöräparkki, suihku- ja pukuhuonetilat ja sauna. Lounasravintoloita on useita lähistöllä.
Kysy rohkeasti lisätietoja ja sovitaan käynti kohteella jo tänään!
Toimisto ehdotus koostuu puoliksi avokonttoritilasta ja työ-/neuvottelutiloista. Lisäksi keittiöllisestä lounge alueesta sekä omista wc-tiloista. Tilaa on mahdollista muunnella vuokralaisen tarpeiden mukaan ja vuokralaisella on mahdollisuus vaikuttaa materiaalivalintoihin.
Keskeisen sijaintinsa ansiosta kiinteistöön on helppo saapua ja kaikki Pasilan palvelut ovat lähettyvillä. Myös raitiovaunut kulkevat aivan kiinteistön kupeessa, ja Pasilan rautatieasemalle on vain lyhyt kävelymatka.
Kiinteistön palveluina mm. aulapalvelut, neuvotteluhuoneita, pyöräparkki, suihku- ja pukuhuonetilat ja sauna. Lounasravintoloita on useita lähistöllä.
Kysy rohkeasti lisätietoja ja sovitaan käynti kohteella jo tänään!
Kohteen tiedot
Pinta-ala:
386 m²
Kerros:
5
Yhteyshenkilö:

Mikko Ranta
mikko.ranta@hausala.fi
050 360 6500
mikko.ranta@hausala.fi
050 360 6500

Mika Savikko
mika.savikko@hausala.fi
050 472 7077
mika.savikko@hausala.fi
050 472 7077