Vuokrataan - Helsingin Pitkänsillanranta 3
Pitkänsillanranta 3, 00530 Helsinki, Hakaniemi
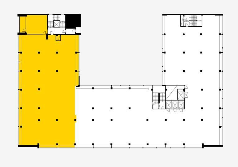
Vuokrataan Helsingin Hakaniemestä viidennen kerroksen 355 m² toimistotila.
Tilassa on avotoimistoa, työ- sekä neuvottelutiloja. Erillisessä ruokailutilassa keittiö. Ilmanvaihto on jäähdytetty.
Keskeisen sijaintinsa ansiosta kiinteistöön on helppo saapua ja kaikki Hakaniemen palvelut ovat lähettyvillä. Myös raitiovaunut kulkevat aivan kiinteistön kupeessa, ja Helsingin päärautatieasemalle on vain lyhyt kävelymatka.
Kiinteistön palveluina mm. kuntosali, neuvotteluhuoneita, pyöräparkki ja parkkitilaa lähettyvillä paljon.
Kysy rohkeasti lisätietoja ja sovitaan käynti kohteella jo tänään!
Tilassa on avotoimistoa, työ- sekä neuvottelutiloja. Erillisessä ruokailutilassa keittiö. Ilmanvaihto on jäähdytetty.
Keskeisen sijaintinsa ansiosta kiinteistöön on helppo saapua ja kaikki Hakaniemen palvelut ovat lähettyvillä. Myös raitiovaunut kulkevat aivan kiinteistön kupeessa, ja Helsingin päärautatieasemalle on vain lyhyt kävelymatka.
Kiinteistön palveluina mm. kuntosali, neuvotteluhuoneita, pyöräparkki ja parkkitilaa lähettyvillä paljon.
Kysy rohkeasti lisätietoja ja sovitaan käynti kohteella jo tänään!
Kohteen tiedot
Pinta-ala:
355 m²
Kerros:
5
Yhteyshenkilö:

Mika Savikko
mika.savikko@hausala.fi
050 472 7077
mika.savikko@hausala.fi
050 472 7077

Mikko Ranta
mikko.ranta@hausala.fi
050 360 6500
mikko.ranta@hausala.fi
050 360 6500