Vuokrataan - Valokaari 10
Valokaari 10, 00750 Helsinki, Suutarila
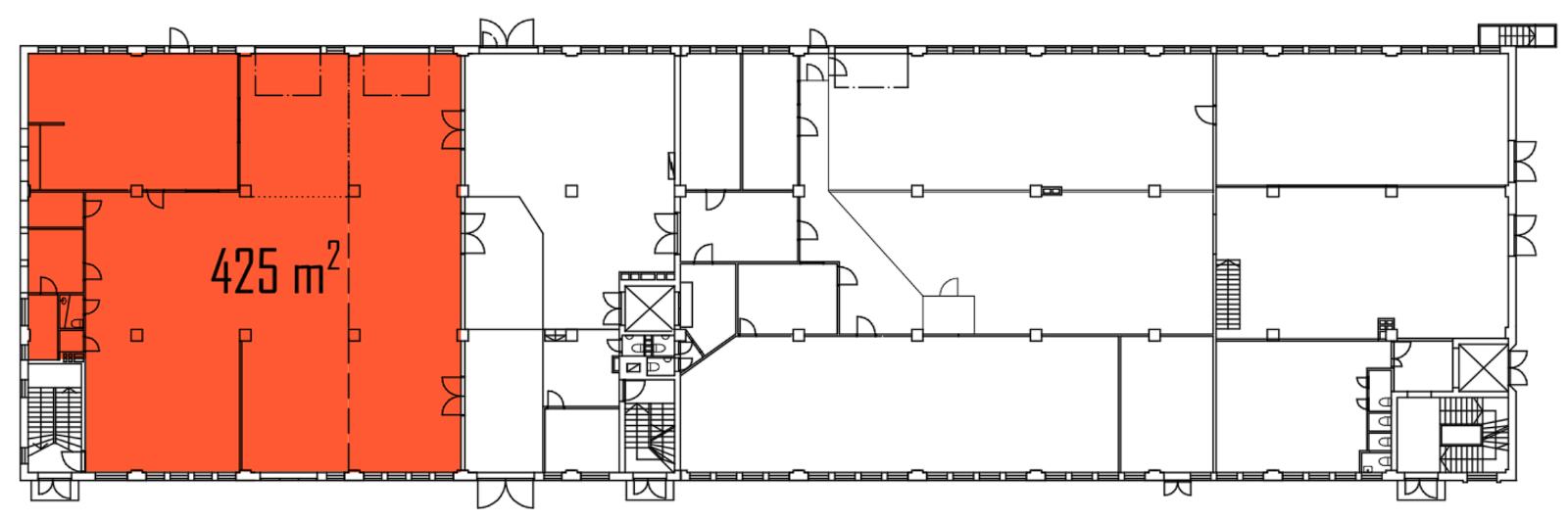
Vuokrataan Helsingin Suutarilasta katutason 425 m² autotalli valmistevarasto rakennuksesta. Tila soveltuu myös varastoksi tai tuotantotilaksi.
Tiloissa on toiminut pitkään autopalvelualan yritys, mutta tila ei sovellu autopesulaksi! Tilan korkeus on noin 3 m ja sinne johtaa pihalta kaksi omaa nosto-ovea (leveys n. 3 m x korkeus 2,3 m) ja taitto-ovi (leveys n. 2,8 m x korkeus 2,6 m). Tilassa on keittiö ja aula tilat.
Pohjapiirrokseen katkoviivalla merkitty kevyt väliseinä ei näy kuvissa. Se voidaan purkaa tarvittaessa.
Kysy rohkeasti lisätietoja ja sovitaan käynti kohteella jo tänään!
Tiloissa on toiminut pitkään autopalvelualan yritys, mutta tila ei sovellu autopesulaksi! Tilan korkeus on noin 3 m ja sinne johtaa pihalta kaksi omaa nosto-ovea (leveys n. 3 m x korkeus 2,3 m) ja taitto-ovi (leveys n. 2,8 m x korkeus 2,6 m). Tilassa on keittiö ja aula tilat.
Pohjapiirrokseen katkoviivalla merkitty kevyt väliseinä ei näy kuvissa. Se voidaan purkaa tarvittaessa.
Kysy rohkeasti lisätietoja ja sovitaan käynti kohteella jo tänään!
Kohteen tiedot
Pinta-ala:
425 m²
Kerros:
Katutaso
Yhteyshenkilö:

Matti Pöyhiä
matti.poyhia@hausala.fi
040 722 6650
matti.poyhia@hausala.fi
040 722 6650

Mika Savikko
mika.savikko@hausala.fi
050 472 7077
mika.savikko@hausala.fi
050 472 7077