Vuokrataan - Sierakiventie 8-10
Sierakiventie 8-10, 02780 Espoo, Kauklahti
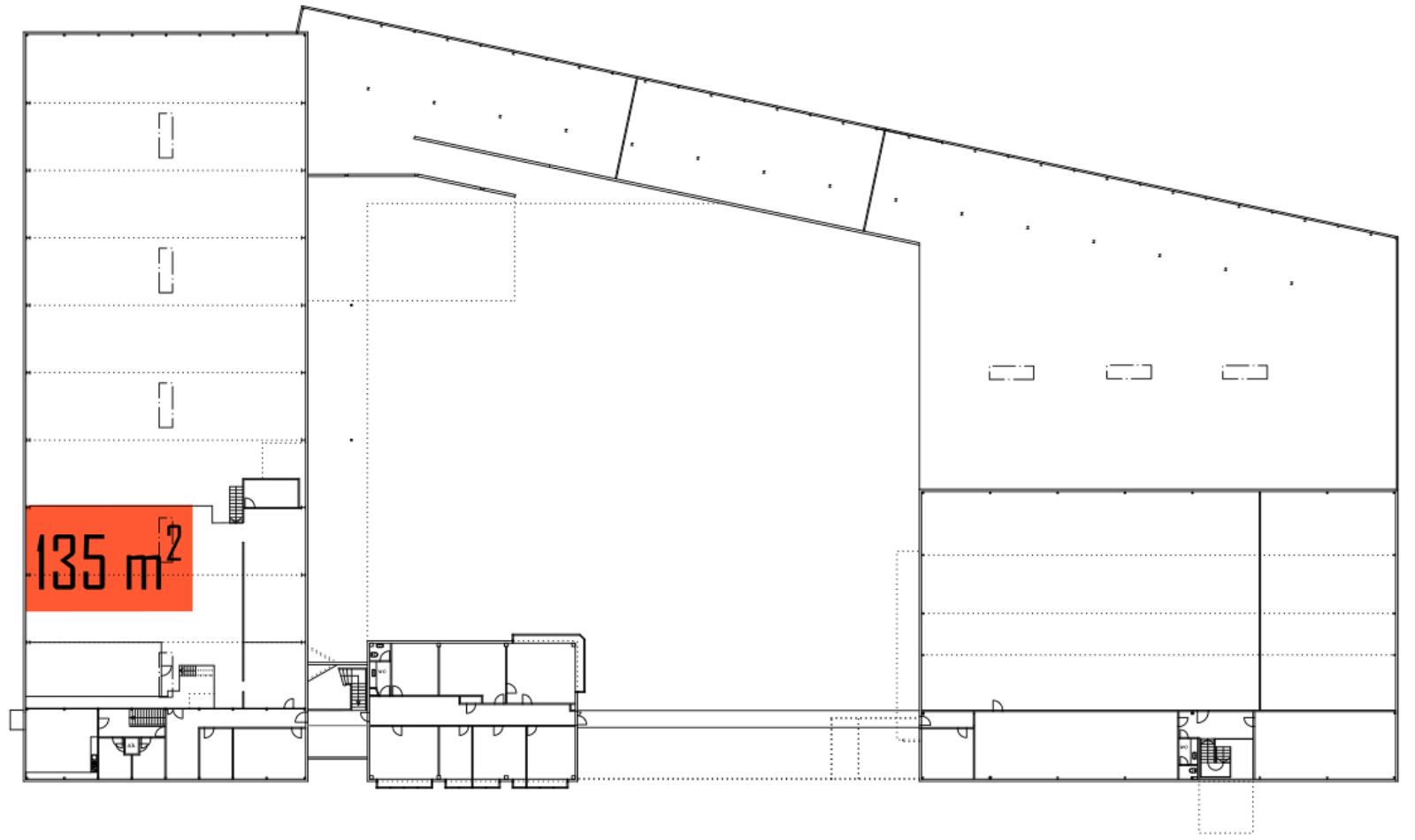
Vuokrataan Espoon Kauklahdesta toisen kerroksen 135 m² hyllyvarastotilasta max. 102 m² osuus, pienimmillään 50 m² osuus.
Varastotila soveltuu esim. pientavaroiden varastointiin. Hyllytilaa on runsaasti käytössä, mutta hyllyt voi myös purkaa tarvittaessa pois.
Kysy rohkeasti lisätietoja ja sovitaan käynti kohteella jo tänään!
Varastotila soveltuu esim. pientavaroiden varastointiin. Hyllytilaa on runsaasti käytössä, mutta hyllyt voi myös purkaa tarvittaessa pois.
Kysy rohkeasti lisätietoja ja sovitaan käynti kohteella jo tänään!
Kohteen tiedot
Pinta-ala:
50 m² - 102 m²
Kerros:
2
Yhteyshenkilö:

Mikko Ranta
mikko.ranta@hausala.fi
050 360 6500
mikko.ranta@hausala.fi
050 360 6500

Mika Savikko
mika.savikko@hausala.fi
050 472 7077
mika.savikko@hausala.fi
050 472 7077