Vuokrataan - Kaitilantie 30
Kaitilantie 30, 16300 Orimattila
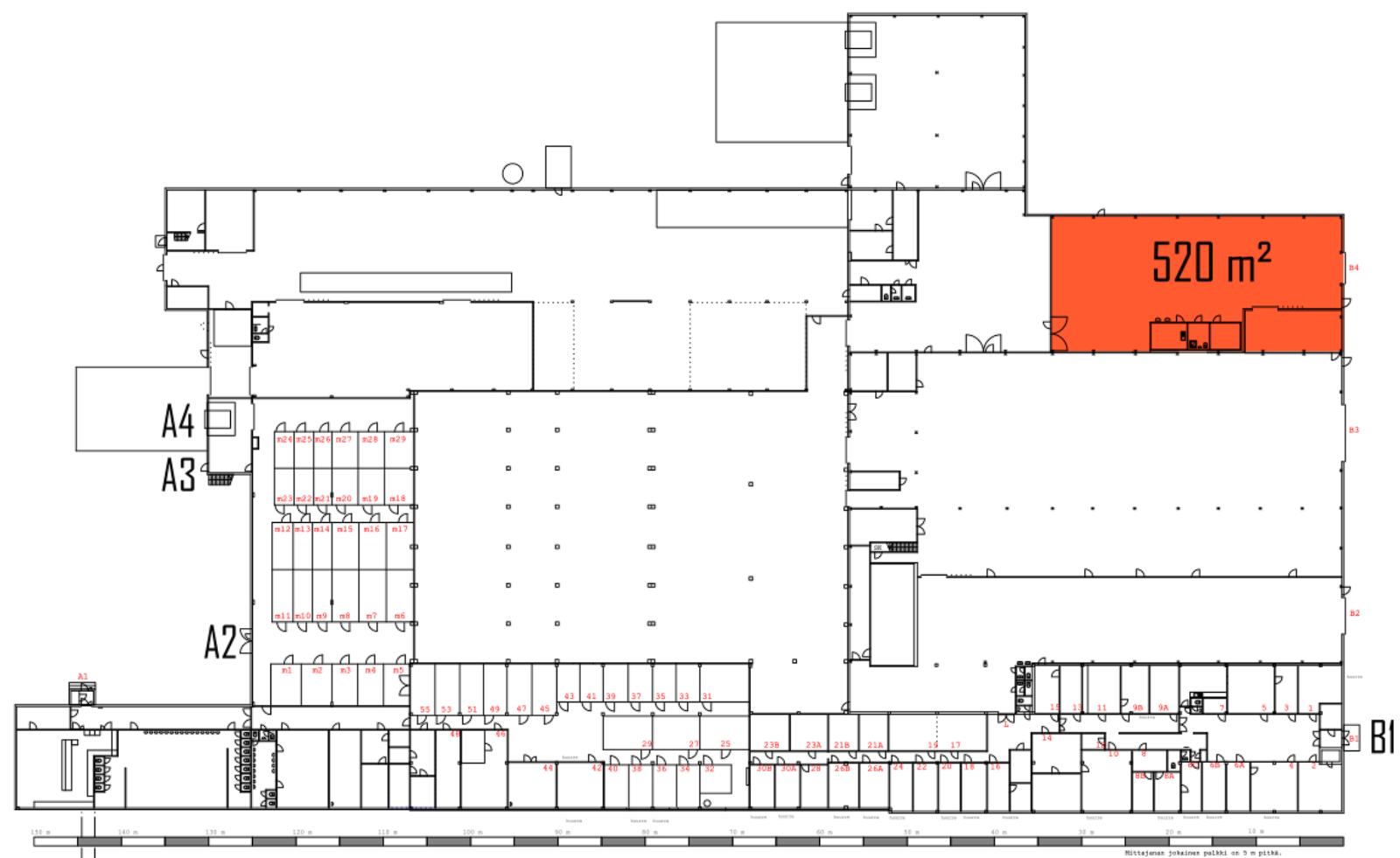
Vuokrataan Orimattilasta katutason 520 m² tuotanto- tai varastotila.
Tilassa 3,6 m leveä ja 4,17 m korkea nosto-ovi. Varastohallin korkeus on 5,6 m kattopalkkiin asti. Laaja halli, jossa erillinen n. 50 m²:n kokoinen tila varastoksi tms. Lisäksi pieni toimisto, keittiö ja wc.
Kysy rohkeasti lisätietoja ja sovitaan käynti kohteella jo tänään!
Tilassa 3,6 m leveä ja 4,17 m korkea nosto-ovi. Varastohallin korkeus on 5,6 m kattopalkkiin asti. Laaja halli, jossa erillinen n. 50 m²:n kokoinen tila varastoksi tms. Lisäksi pieni toimisto, keittiö ja wc.
Kysy rohkeasti lisätietoja ja sovitaan käynti kohteella jo tänään!
Kohteen tiedot
Pinta-ala:
520 m²
Kerros:
Katutaso
Yhteyshenkilö:

Tero Ala-Hannula
tero.ala-hannula@hausala.fi
040 508 1351
tero.ala-hannula@hausala.fi
040 508 1351

Mika Savikko
mika.savikko@hausala.fi
050 472 7077
mika.savikko@hausala.fi
050 472 7077