Vuokrataan - Minkkikatu 1-3
Minkkikatu 1-3, 04430 Järvenpää, Mikonkorpi
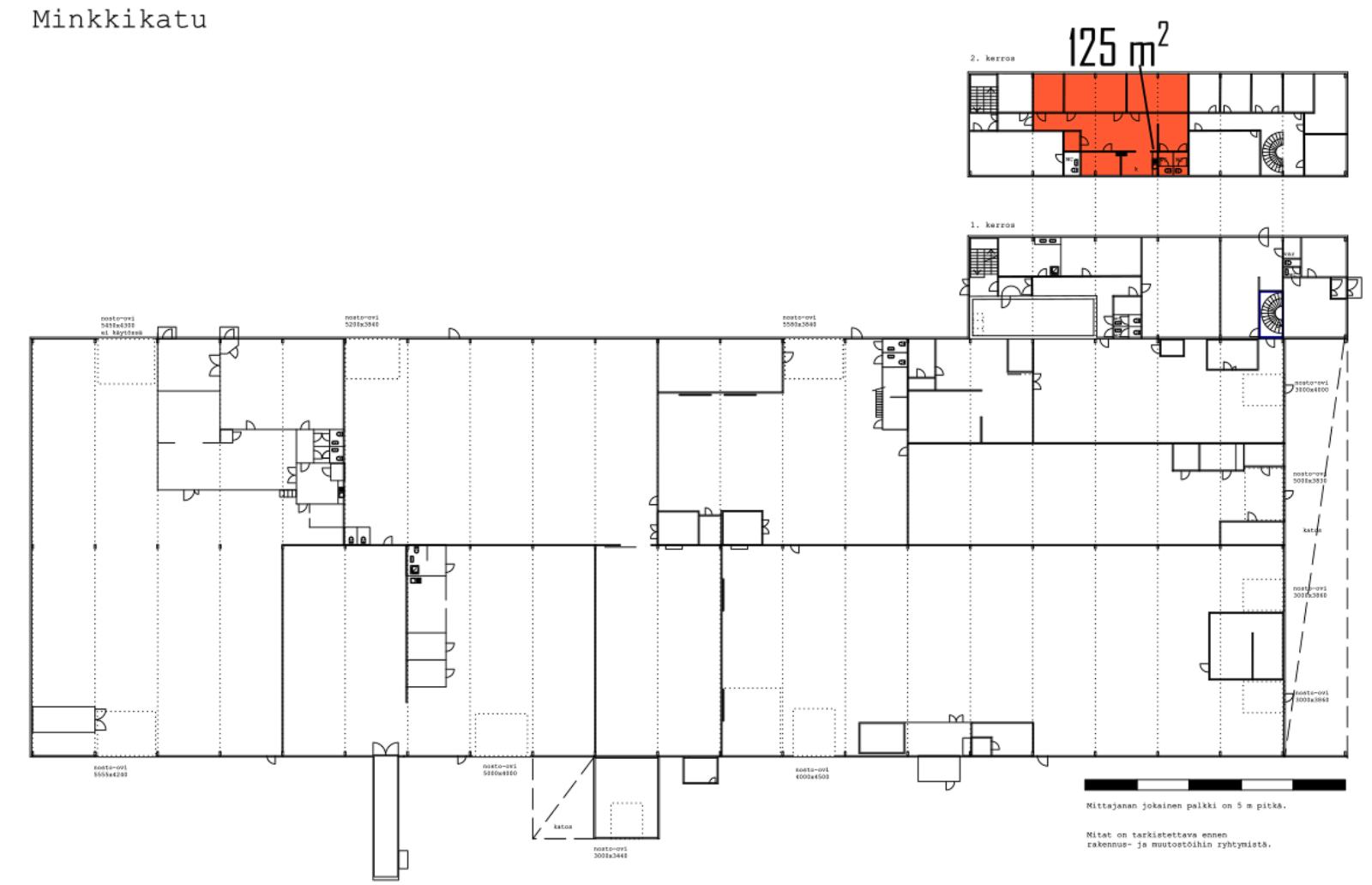
Vuokrataan Järvenpään Mikonkorvesta toisen kerroksen 125 m² toimistotila.
Tiloissa on koneellinen ilmanvaihto ja jäähdytys. Piha-alueella on hyvät pysäköintitilat.
Kysy rohkeasti lisätietoja ja sovitaan käynti kohteella jo tänään!
Tiloissa on koneellinen ilmanvaihto ja jäähdytys. Piha-alueella on hyvät pysäköintitilat.
Kysy rohkeasti lisätietoja ja sovitaan käynti kohteella jo tänään!
Kohteen tiedot
Pinta-ala:
125 m²
Kerros:
2
Yhteyshenkilö:

Matti Pöyhiä
matti.poyhia@hausala.fi
040 722 6650
matti.poyhia@hausala.fi
040 722 6650

Mika Savikko
mika.savikko@hausala.fi
050 472 7077
mika.savikko@hausala.fi
050 472 7077