Vuokrataan - Vantaan Silvastintie 1
Silvastintie 1, 01510 Vantaa, Ylästö
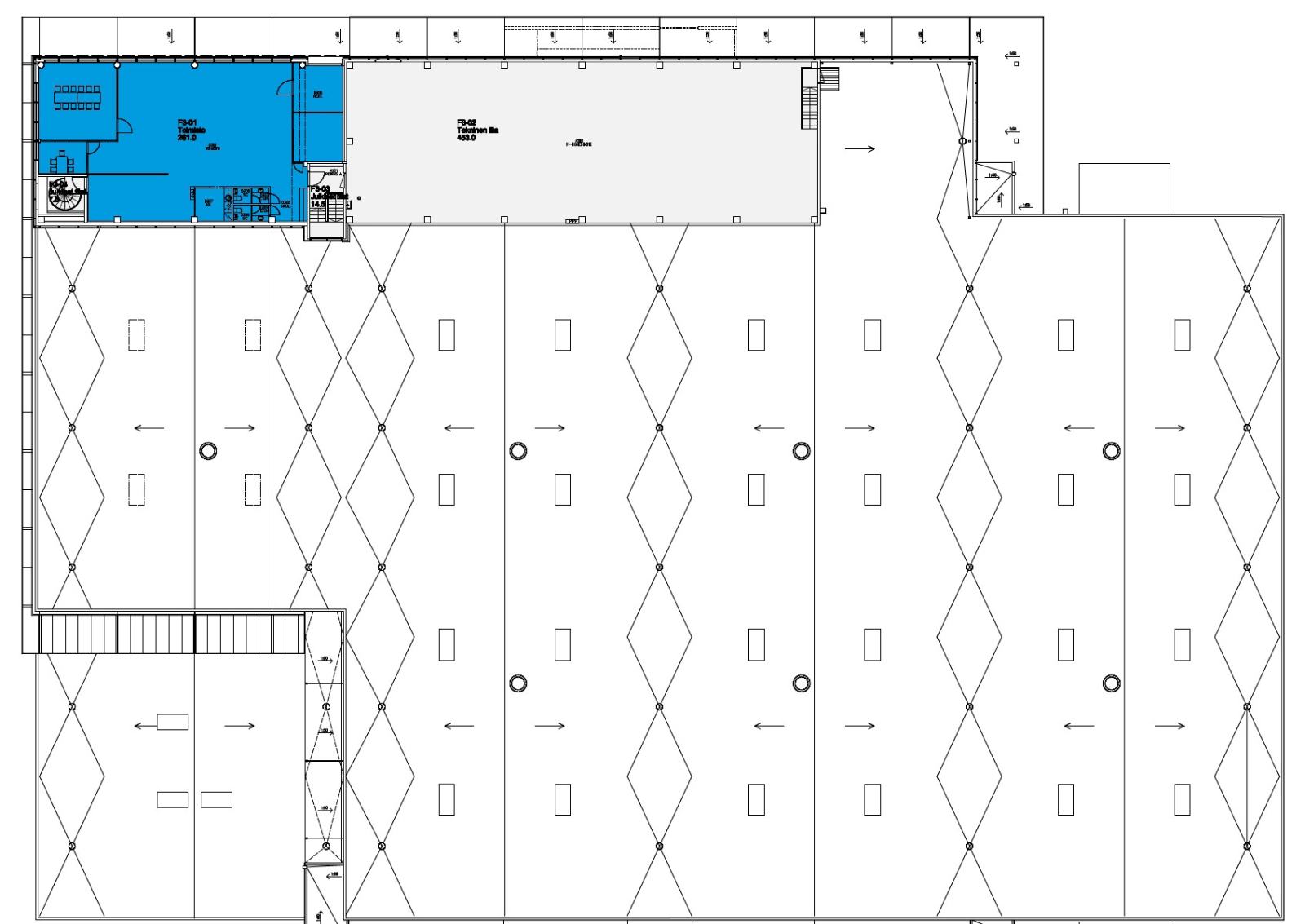
Vuokrataan 261 m² siisti toimistotila Pakkalasta, Aviapoliksen alueelta.
Kiinteistö sijaitsee Kehä III:n läheisyydessä lähellä Jumbon kauppakeskusta, suunnitteilla oleva Vantaan ratikka tulee kulkemaan kiinteistön vierestä (arvioitu valmistuminen v. 2029 aikana).
Tästä kiinteistöstä on mahdollista muokata juuri teidän toimintaanne sopivat tilat.
Ota yhteyttä, käydään kiertämässä kohteen vapaat tilat ja suunnitellaan teille sopiva kokonaisuus!
Kiinteistö sijaitsee Kehä III:n läheisyydessä lähellä Jumbon kauppakeskusta, suunnitteilla oleva Vantaan ratikka tulee kulkemaan kiinteistön vierestä (arvioitu valmistuminen v. 2029 aikana).
Tästä kiinteistöstä on mahdollista muokata juuri teidän toimintaanne sopivat tilat.
Ota yhteyttä, käydään kiertämässä kohteen vapaat tilat ja suunnitellaan teille sopiva kokonaisuus!
Kohteen tiedot
Pinta-ala:
261 m²
Rakennusvuosi:
2007
Kerros:
3
Yhteyshenkilö:

Matti Pöyhiä
matti.poyhia@hausala.fi
040 722 6650
matti.poyhia@hausala.fi
040 722 6650

Mika Savikko
mika.savikko@hausala.fi
050 472 7077
mika.savikko@hausala.fi
050 472 7077