Vuokrataan - Hankasuontie 9
Hankasuontie 9, 00390 Helsinki, Konala
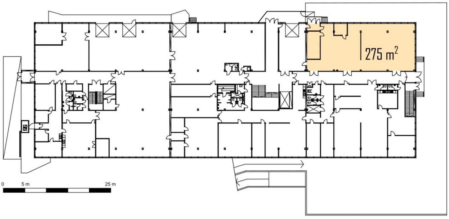
Vuokrataan Helsingin Konalasta ensimmäisen kerroksen 275 m² varastotila toimistolla. Soveltuu myös tuotantotilaksi.
Väliseinä jakaa tilan noin puoliksi toimistolle ja varastolle. Kulkuyhteys ulkoa suoraan omasta ovesta tai lastauslaiturilta käytävän kautta. Varastopuolelle myös oma ovi käytävästä. Toimistossa keittiönurkka, wc:t käytävällä.
Kysy rohkeasti lisätietoja ja sovitaan käynti kohteella jo tänään!
Väliseinä jakaa tilan noin puoliksi toimistolle ja varastolle. Kulkuyhteys ulkoa suoraan omasta ovesta tai lastauslaiturilta käytävän kautta. Varastopuolelle myös oma ovi käytävästä. Toimistossa keittiönurkka, wc:t käytävällä.
Kysy rohkeasti lisätietoja ja sovitaan käynti kohteella jo tänään!
Kohteen tiedot
Pinta-ala:
275 m²
Kerros:
1
Yhteyshenkilö:

Mikko Ranta
mikko.ranta@hausala.fi
050 360 6500
mikko.ranta@hausala.fi
050 360 6500

Mika Savikko
mika.savikko@hausala.fi
050 472 7077
mika.savikko@hausala.fi
050 472 7077