Vuokrataan - Atomitie 1
Atomitie 1, 00370 Helsinki, Pitäjänmäki
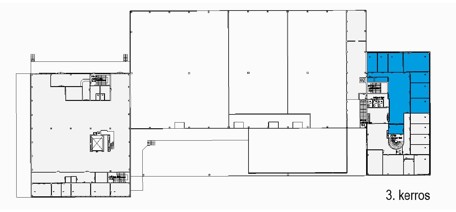
Vuokrataan Helsingin Pitäjänmäeltä kolmannen kerroksen 239 m² toimistotila. Tämä ylimmän kerroksen tila tullaan remontoimaan yhdessä käyttäjän kanssa ennen käyttöönottoa. Huom. Osa kohdekuvista on digitaalisesti käsiteltyjä.
Atomitie 1 on Valimon perinteikkäällä teollisuusalueella sijaitseva logistiikka- ja toimitilakiinteistö.
Kiinteistön keskeinen sijainti Kehä I:n välittömässä läheisyydessä ja hyvät kulkuyhteydet tukevat monenlaista liiketoimintaa. Kehä III on noin 10min ajomatkan päässä, josta on yhteydet mm. Vuosaaren Satamaan ja lentokentälle. Erinomaiset julkisen liikenteen yhteydet Helsingin keskustaan busseilla, junalla Pitäjänmäen asemalta sekä poikittain raitiolinja 15 myötä.
Kysy rohkeasti lisätietoja ja sovitaan käynti kohteella jo tänään!
Atomitie 1 on Valimon perinteikkäällä teollisuusalueella sijaitseva logistiikka- ja toimitilakiinteistö.
Kiinteistön keskeinen sijainti Kehä I:n välittömässä läheisyydessä ja hyvät kulkuyhteydet tukevat monenlaista liiketoimintaa. Kehä III on noin 10min ajomatkan päässä, josta on yhteydet mm. Vuosaaren Satamaan ja lentokentälle. Erinomaiset julkisen liikenteen yhteydet Helsingin keskustaan busseilla, junalla Pitäjänmäen asemalta sekä poikittain raitiolinja 15 myötä.
Kysy rohkeasti lisätietoja ja sovitaan käynti kohteella jo tänään!
Kohteen tiedot
Pinta-ala:
239 m²
Rakennusvuosi:
1963
Kerros:
3
Yhteyshenkilö:

Mika Savikko
mika.savikko@hausala.fi
050 472 7077
mika.savikko@hausala.fi
050 472 7077

Mikko Ranta
mikko.ranta@hausala.fi
050 360 6500
mikko.ranta@hausala.fi
050 360 6500