Vuokrataan - Turun Kaakelinna
Linnankatu 50-52, 20100 Turku, Länsiranta
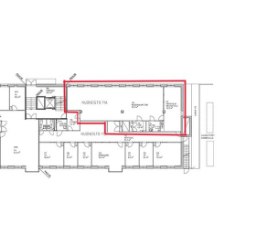
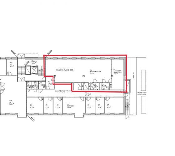
Vuokrataan Turun Länsirannasta ensimmäisen kerroksen 137 m² toimistotila. Tila koostuu erikokoisista sermein rajatuista huoneista. Tilasta löytyy oma keittiö ja wc. Tilat helposti muokattavissa vastaamaan asiakkaan toiveita.
Kaakelinna sijaitsee Aurajoen varrella Turun keskusta-alueella ja on valmistunut vuonna 2002. Kiinteistön tilat ovat jäähdytettyjä.
Pysäköintitilaa löytyy rakennuksen kellaritiloista sekä kadunvarsilta.
Saavutettavuus on erinomainen joukkoliikenteellä, pyörällä ja henkilöautolla. Etäisyys lähimmälle paikallisliikenteen bussipysäkille on noin 50 metriä.
Kysy rohkeasti lisätietoja ja sovitaan käynti kohteella jo tänään!
Kaakelinna sijaitsee Aurajoen varrella Turun keskusta-alueella ja on valmistunut vuonna 2002. Kiinteistön tilat ovat jäähdytettyjä.
Pysäköintitilaa löytyy rakennuksen kellaritiloista sekä kadunvarsilta.
Saavutettavuus on erinomainen joukkoliikenteellä, pyörällä ja henkilöautolla. Etäisyys lähimmälle paikallisliikenteen bussipysäkille on noin 50 metriä.
Kysy rohkeasti lisätietoja ja sovitaan käynti kohteella jo tänään!
Kohteen tiedot
Pinta-ala:
137 m²
Hinta-arvio:
20 - 24 €/m²
(2 740 - 3 288 €/kk)
Rakennusvuosi:
2002
Kerros:
1
Jäähdytetty:
Kyllä
Tilan ominaisuudet:
- Avotoimisto
- Heti vapaa
- Jäähdytetty
- Keittiö, oma
- Koneellinen ilmanvaihto
- WC, oma
Kiinteistön palvelut:
- Asiakaspysäköinti
- Pysäköintihalli
Yhteyshenkilö:
Mikko Ranta
mikko.ranta@hausala.fi
050 360 6500
mikko.ranta@hausala.fi
050 360 6500
