Vuokrataan - Plaza Business Park
Äyritie 16, 01510 Vantaa, Aviapolis
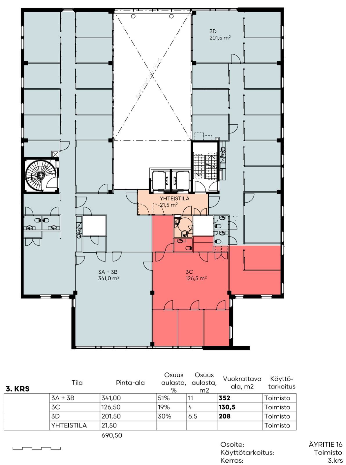
Vuokrataan Vantaan Aviapoliksesta kolmannen kerroksen heti vapaa 130 m² toimistotila 3C (Rakennus Pilke).
Plaza Business Park tarjoaa vuokrattavia toimitiloja. Vuosina 2011 - 2014 valmistunut Plaza on toiminnallisesti yhtenäinen toimistokokonaisuus, joka käsittää viisi toimistorakennusta ja pysäköintilaitoksen. Plaza tarjoaa vuokralaisilleen edustavat, modernit toimitilat erinomaisella sijainnilla sekä monipuoliset liiketoiminnan tukipalvelut.
Kysy rohkeasti lisätietoja ja sovitaan käynti kohteella jo tänään!
Plaza Business Park tarjoaa vuokrattavia toimitiloja. Vuosina 2011 - 2014 valmistunut Plaza on toiminnallisesti yhtenäinen toimistokokonaisuus, joka käsittää viisi toimistorakennusta ja pysäköintilaitoksen. Plaza tarjoaa vuokralaisilleen edustavat, modernit toimitilat erinomaisella sijainnilla sekä monipuoliset liiketoiminnan tukipalvelut.
Kysy rohkeasti lisätietoja ja sovitaan käynti kohteella jo tänään!
Kohteen tiedot
Pinta-ala:
130 m²
Kerros:
3
Yhteyshenkilö:

Matti Pöyhiä
matti.poyhia@hausala.fi
040 722 6650
matti.poyhia@hausala.fi
040 722 6650

Mika Savikko
mika.savikko@hausala.fi
050 472 7077
mika.savikko@hausala.fi
050 472 7077