Vuokrataan - Ruosilantie 10
Ruosilantie 10, 00390 Helsinki, Konala
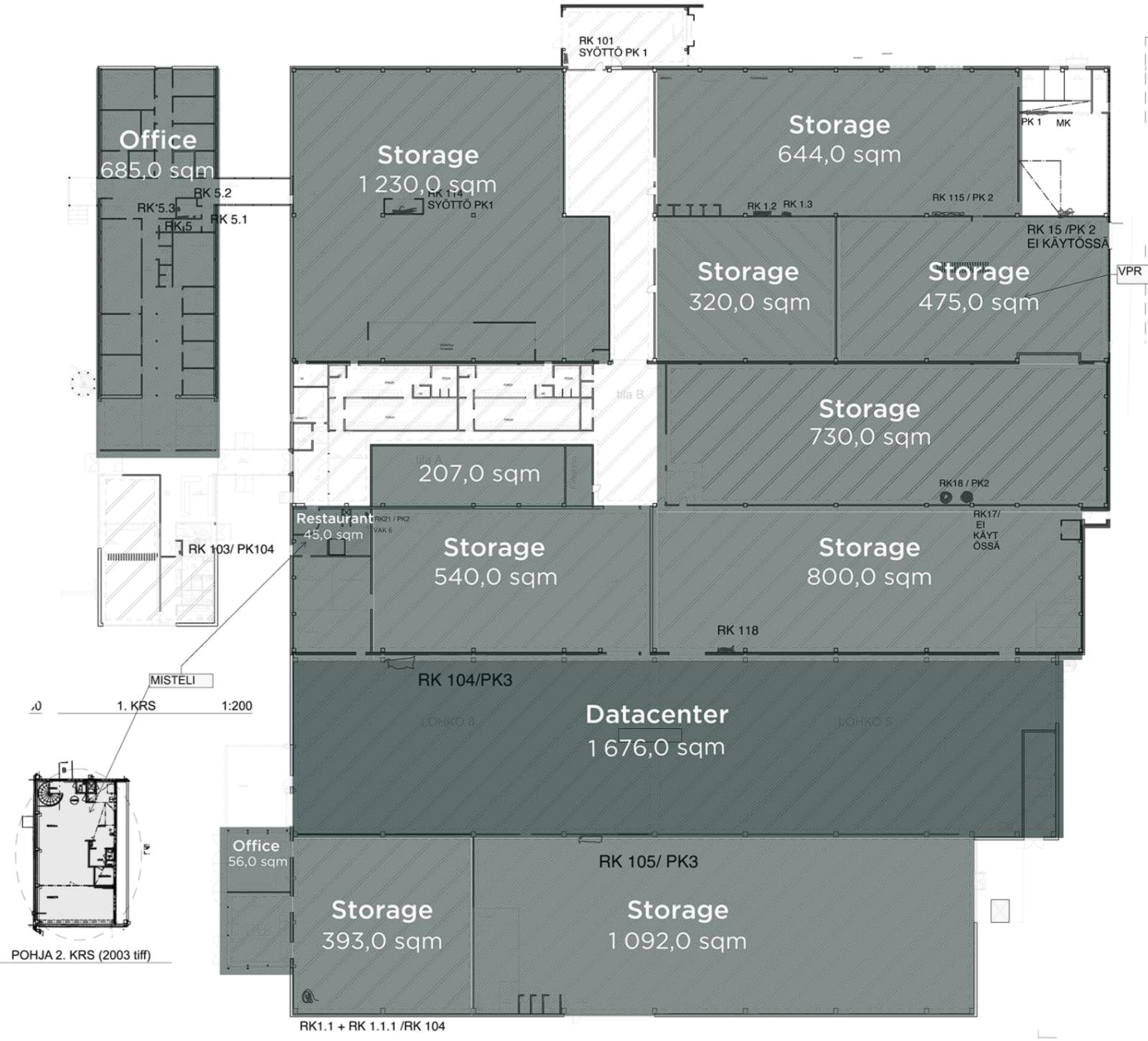
Vuokrataan Helsingin Pitäjänmäestä ensimmäisen kerroksen heti vapaa 1 676 m² varasto- / tuotantotila. Tilassa aikaisemmin ollut datakeskustoimintaa.
Kysy rohkeasti lisätietoja ja sovitaan käynti kohteella jo tänään!
Kysy rohkeasti lisätietoja ja sovitaan käynti kohteella jo tänään!
Kohteen tiedot
Pinta-ala:
1 676 m²
Kerros:
1
Yhteyshenkilö:

Mikko Ranta
mikko.ranta@hausala.fi
050 360 6500
mikko.ranta@hausala.fi
050 360 6500

Mika Savikko
mika.savikko@hausala.fi
050 472 7077
mika.savikko@hausala.fi
050 472 7077