Vuokrataan - Move
Kutomotie 2, 00380 Helsinki, Pitäjänmäki
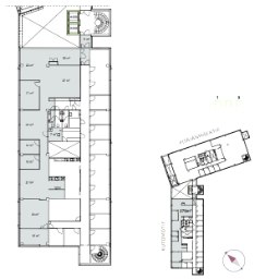
Vuokrataan Helsingin Pitäjänmäestä kolmannen kerroksen heti vapaa 279 m² toimistotila.
Talossa on hyvät palvelut mm. aulapalvelu ja kuntosali, sekä erilaisia neuvottelu- ja edustustiloja eri tarpeisiin. Talossa toimii myös lounasravintola.
Kysy rohkeasti lisätietoja ja sovitaan käynti kohteella jo tänään!
Talossa on hyvät palvelut mm. aulapalvelu ja kuntosali, sekä erilaisia neuvottelu- ja edustustiloja eri tarpeisiin. Talossa toimii myös lounasravintola.
Kysy rohkeasti lisätietoja ja sovitaan käynti kohteella jo tänään!
Kohteen tiedot
Pinta-ala:
279 m²
Rakennusvuosi:
2009
Kerros:
3
Yhteyshenkilö:

Mikko Ranta
mikko.ranta@hausala.fi
050 360 6500
mikko.ranta@hausala.fi
050 360 6500

Mika Savikko
mika.savikko@hausala.fi
050 472 7077
mika.savikko@hausala.fi
050 472 7077