Vuokrataan - Plaza Business Park Tuike
Äyritie 22, 01510 Vantaa, Veromies
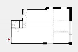
Vuokrataan Vantaalta Veromiehestä heti vapaa neljännen kerroksen 104 m² toimistotila.
Tilassa on avotilaa, kolme työhuonetta, oma keittiö ja wc. Lisäksi tarjolla on kattavat business parkin palvelut. Vuokrattavissa pysäköintioikeuksia Plaza Business Parkin pysäköintitalosta, sekä jokaisen talon kellaritiloista.
Kysy rohkeasti lisätietoja ja sovitaan käynti kohteella jo tänään!
Tilassa on avotilaa, kolme työhuonetta, oma keittiö ja wc. Lisäksi tarjolla on kattavat business parkin palvelut. Vuokrattavissa pysäköintioikeuksia Plaza Business Parkin pysäköintitalosta, sekä jokaisen talon kellaritiloista.
Kysy rohkeasti lisätietoja ja sovitaan käynti kohteella jo tänään!
Kohteen tiedot
Pinta-ala:
104 m²
Kerros:
4
Yhteyshenkilö:

Matti Pöyhiä
matti.poyhia@hausala.fi
040 722 6650
matti.poyhia@hausala.fi
040 722 6650

Mika Savikko
mika.savikko@hausala.fi
050 472 7077
mika.savikko@hausala.fi
050 472 7077