Vuokrataan - Klingendahl
Eteläpuisto 2C, 33200 Tampere, Kaakinmaa
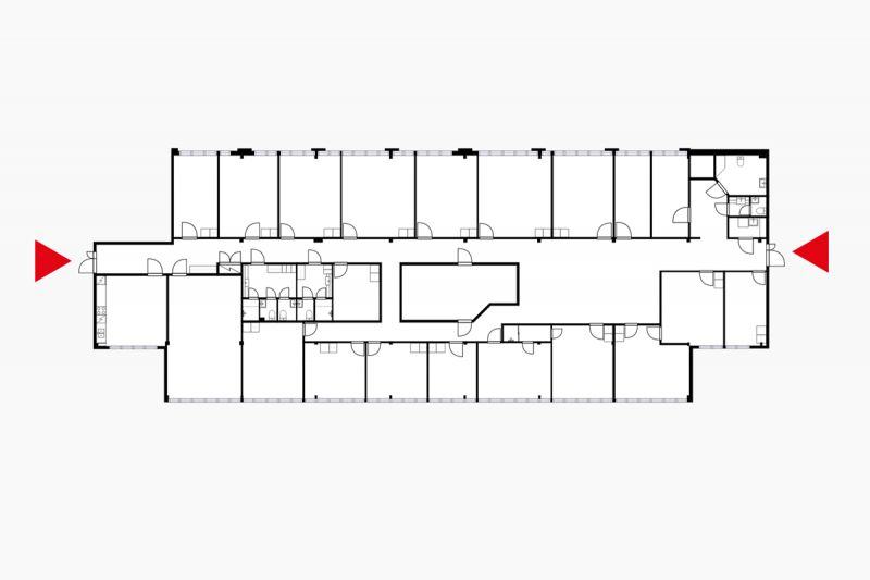
Vuokrataan Tampereen Kaakinmaalta heti vapaa viidennen, ylimmän kerroksen 591 m² toimistotila.
Klingendahlin kiinteistö sijaitsee Eteläpuistossa. Rakennus on vanha teollisuusrakennus, joka on nykypäivänä suojeltu kohde. Tilojen erikoisuutena on mm. normaalia korkeammat huonekorkeudet osassa huoneista.
Kysy rohkeasti lisätietoja ja sovitaan käynti kohteella jo tänään!
Klingendahlin kiinteistö sijaitsee Eteläpuistossa. Rakennus on vanha teollisuusrakennus, joka on nykypäivänä suojeltu kohde. Tilojen erikoisuutena on mm. normaalia korkeammat huonekorkeudet osassa huoneista.
Kysy rohkeasti lisätietoja ja sovitaan käynti kohteella jo tänään!
Kohteen tiedot
Pinta-ala:
591 m²
Kerros:
5
Yhteyshenkilö:

Mikko Ranta
mikko.ranta@hausala.fi
050 360 6500
mikko.ranta@hausala.fi
050 360 6500

Mika Savikko
mika.savikko@hausala.fi
050 472 7077
mika.savikko@hausala.fi
050 472 7077