Vuokrataan - Ruosilantie 14
Ruosilantie 14, 00390 Helsinki, Konala
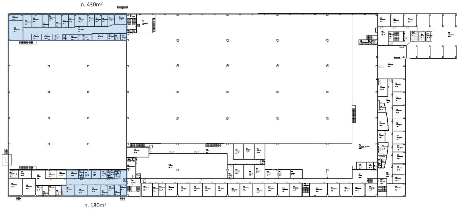
Vuokrataan toisen kerroksen 180 m² toimistotila Helsingin Konalasta. Tämä rauhallinen toimistotila koostuu erikokoisista työhuoneista. Tila voidaan remontoida asiakkaan toiveiden mukaan.
Kiinteistössä on oma lounasravintola, saunaosasto, sosiaalitilat ja laaja parkkialue. Kiinteistö sijaitsee Vihdintien välittömässä läheisyydessä ja on helposti saavutettavissa Kehä I:ltä. Hyvät bussiyhteydet ja Malminkartanon juna-asema sijaitsee 1,3 km päässä.
Kysy rohkeasti lisätietoja ja sovitaan käynti kohteella jo tänään!
Kiinteistössä on oma lounasravintola, saunaosasto, sosiaalitilat ja laaja parkkialue. Kiinteistö sijaitsee Vihdintien välittömässä läheisyydessä ja on helposti saavutettavissa Kehä I:ltä. Hyvät bussiyhteydet ja Malminkartanon juna-asema sijaitsee 1,3 km päässä.
Kysy rohkeasti lisätietoja ja sovitaan käynti kohteella jo tänään!
Kohteen tiedot
Pinta-ala:
180 m²
Kerros:
2
Yhteyshenkilö:

Mika Savikko
mika.savikko@hausala.fi
050 472 7077
mika.savikko@hausala.fi
050 472 7077

Mikko Ranta
mikko.ranta@hausala.fi
050 360 6500
mikko.ranta@hausala.fi
050 360 6500