Vuokrataan - Muonamiehentie 12
Muonamiehentie 12, 00390 Helsinki, Konala
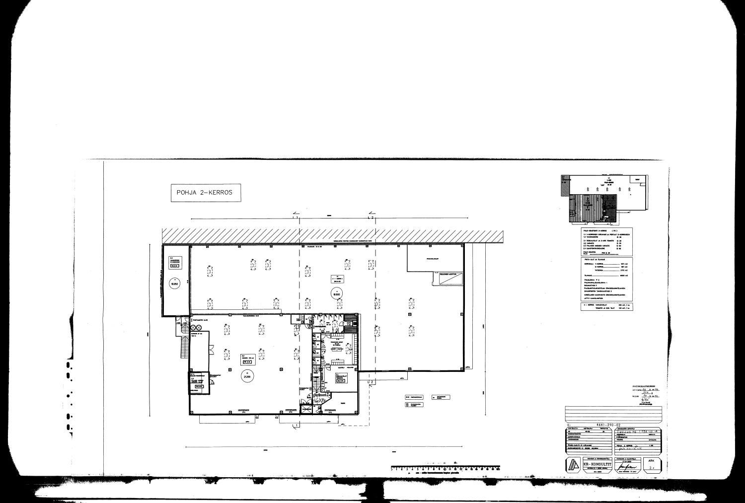
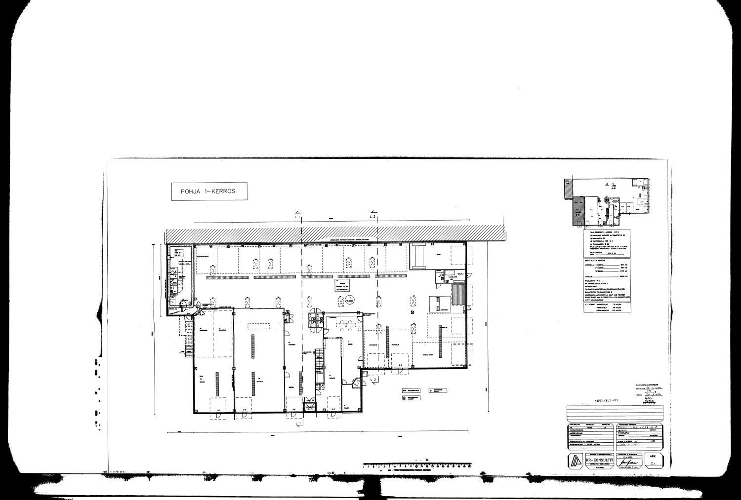
Vuokrataan 2 100 m² autohuolto-/tuotanto-/varastotila Konalasta. Tila on valmistunut v. 2001 ja on siistissä kunnossa. Tiloissa on valmiina pari nostinta, jarrudynamo, öljynjakelujärjestelmä sekä pesulinjasto.
Kohde sijaitsee hyvien kulkuyhteyksien äärellä, Kehä I ja Vihdintien liittymän kohdalla.
Kysy rohkeasti lisätietoja ja sovitaan käynti kohteella jo tänään!
Kohde sijaitsee hyvien kulkuyhteyksien äärellä, Kehä I ja Vihdintien liittymän kohdalla.
Kysy rohkeasti lisätietoja ja sovitaan käynti kohteella jo tänään!
Kohteen tiedot
Pinta-ala:
2 100 m²
Rakennusvuosi:
2001
Kerros:
1-2
Yhteyshenkilö:

Mika Savikko
mika.savikko@hausala.fi
050 472 7077
mika.savikko@hausala.fi
050 472 7077

Mikko Ranta
mikko.ranta@hausala.fi
050 360 6500
mikko.ranta@hausala.fi
050 360 6500