Vuokrataan - Mänkimiehentie 4
Mänkimiehentie 4, 02780 Espoo, Kauklahti
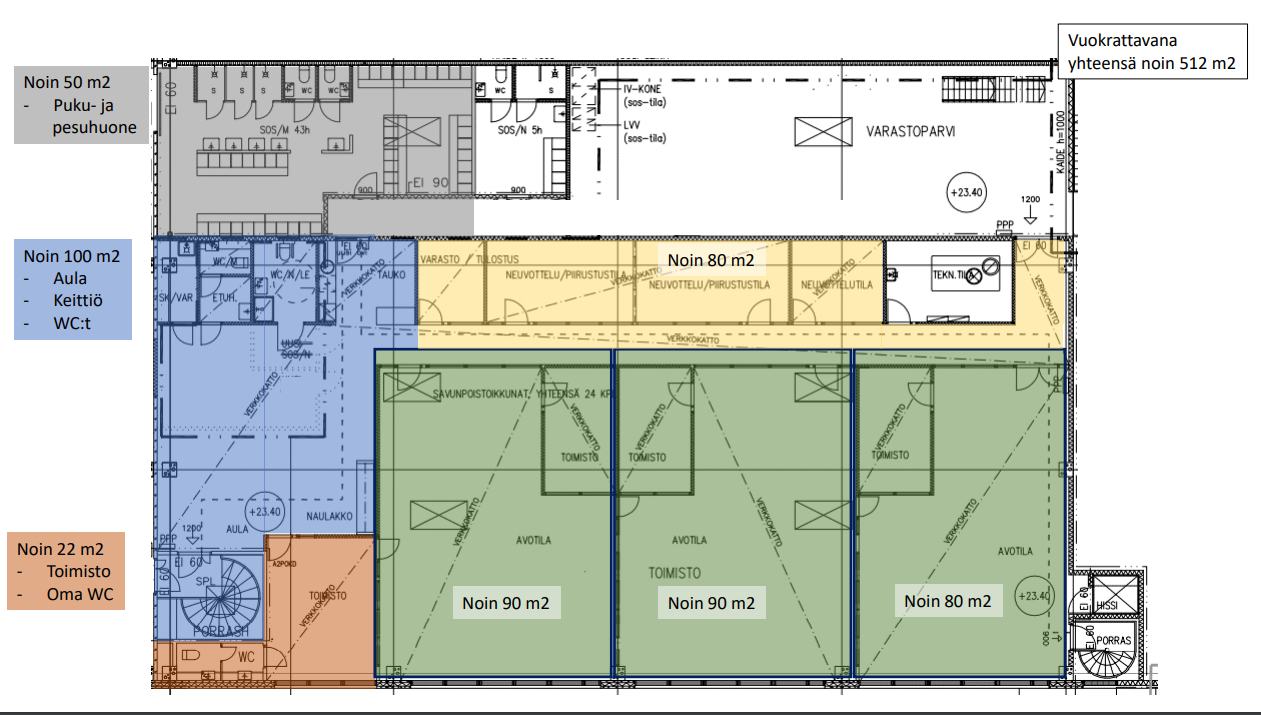
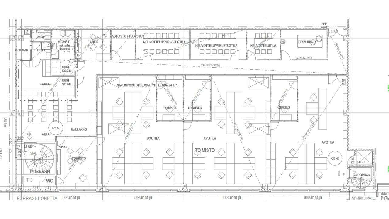
Vuokrataan 432 m²:n moderni ja ja hieno toisen kerroksen toimistotila Kauklahdesta. Tilaan on kaksi sisäänkäyntiä ja hissi. Tavarakuljetuksiin on käytettävissä lastauslaituri.
Kohteelta on hyvät liikenneyhteydet Kehä III pitkin kaikille pääväylille, erityisesti Turuntielle ja Länsiväylälle. Ajoaika lentoasemalle alle puoli tuntia. Juna-asemalle ja bussipysäkin kävelymatkan päässä.
Kohteelta voi olla mahdollista vuokrata pienempikin toimistotila. Kysy rohkeasti lisätietoja ja sovitaan käynti kohteella jo tänään!
Kohteelta on hyvät liikenneyhteydet Kehä III pitkin kaikille pääväylille, erityisesti Turuntielle ja Länsiväylälle. Ajoaika lentoasemalle alle puoli tuntia. Juna-asemalle ja bussipysäkin kävelymatkan päässä.
Kohteelta voi olla mahdollista vuokrata pienempikin toimistotila. Kysy rohkeasti lisätietoja ja sovitaan käynti kohteella jo tänään!
Kohteen tiedot
Pinta-ala:
432 m²
Kerros:
2
Yhteyshenkilö:

Mikko Ranta
mikko.ranta@hausala.fi
050 360 6500
mikko.ranta@hausala.fi
050 360 6500

Mika Savikko
mika.savikko@hausala.fi
050 472 7077
mika.savikko@hausala.fi
050 472 7077