Vuokrataan - Vantaan Vanhan Porvoontien Jatke
Vanha Porvoontie 256a, 01380 Vantaa, Hakkila
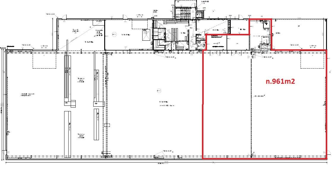
Vuokrataan 960 m² hallitilaa Vantaan Hakkilasta. Tämä katutason tila on n. 8 m korkea, tilaan on yksi suuri nosto- ovi (6m x 6m). Lattian kantavuus on 1 500 kg/m² ja pistekuorma 7000kg. Tilan sähkö ja pääsulakekoko on 3x3x200 A.
Kiinteistö sijaitsee Vantaan Hakkilan teollisuusalueella, Lahden moottoritien vieressä ja 4,5 km Kehä III:sta pohjoiseen. Vuosaaren satamaan ja lentokentälle on kumpaankin matkaa noin 12 km, Helsingin keskusta on 21 km päässä. Pysäköintipaikkoja on pihassa ja lähin bussipysäkki sijaitsee n. 400 m päässä.
Kysy lisätietoja tai sovitaan käynti kohteelle jo tänään!
Kiinteistö sijaitsee Vantaan Hakkilan teollisuusalueella, Lahden moottoritien vieressä ja 4,5 km Kehä III:sta pohjoiseen. Vuosaaren satamaan ja lentokentälle on kumpaankin matkaa noin 12 km, Helsingin keskusta on 21 km päässä. Pysäköintipaikkoja on pihassa ja lähin bussipysäkki sijaitsee n. 400 m päässä.
Kysy lisätietoja tai sovitaan käynti kohteelle jo tänään!
Kohteen tiedot
Pinta-ala:
960 m²
Rakennusvuosi:
2018
Kerros:
1
Yhteyshenkilö:

Matti Pöyhiä
matti.poyhia@hausala.fi
040 722 6650
matti.poyhia@hausala.fi
040 722 6650

Mika Savikko
mika.savikko@hausala.fi
050 472 7077
mika.savikko@hausala.fi
050 472 7077