Vuokrataan - Grand Cargo Terminal 2
Tahkotie 1 F, 01530 Vantaa, Viinikkala
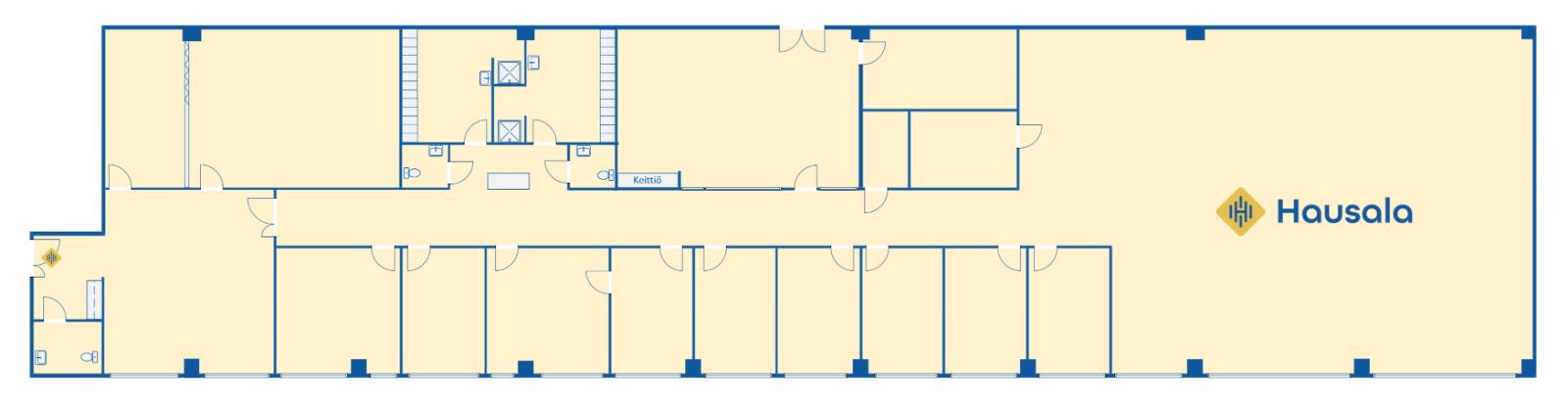
Vuokrataan siistikuntoinen toisen kerroksen 538,5 m² toimistotila Aviapoliksesta.
Kysy lisätietoja tai sovitaan käynti kohteelle jo tänään!
Kysy lisätietoja tai sovitaan käynti kohteelle jo tänään!
Kohteen tiedot
Pinta-ala:
538,5 m²
Rakennusvuosi:
2012
Kerros:
2
Yhteyshenkilö:

Matti Pöyhiä
matti.poyhia@hausala.fi
040 722 6650
matti.poyhia@hausala.fi
040 722 6650

Mika Savikko
mika.savikko@hausala.fi
050 472 7077
mika.savikko@hausala.fi
050 472 7077