Vuokrataan - Kalasataman Kummeli
Sörnäisten rantatie 29, 00500 Helsinki, Sörnäinen
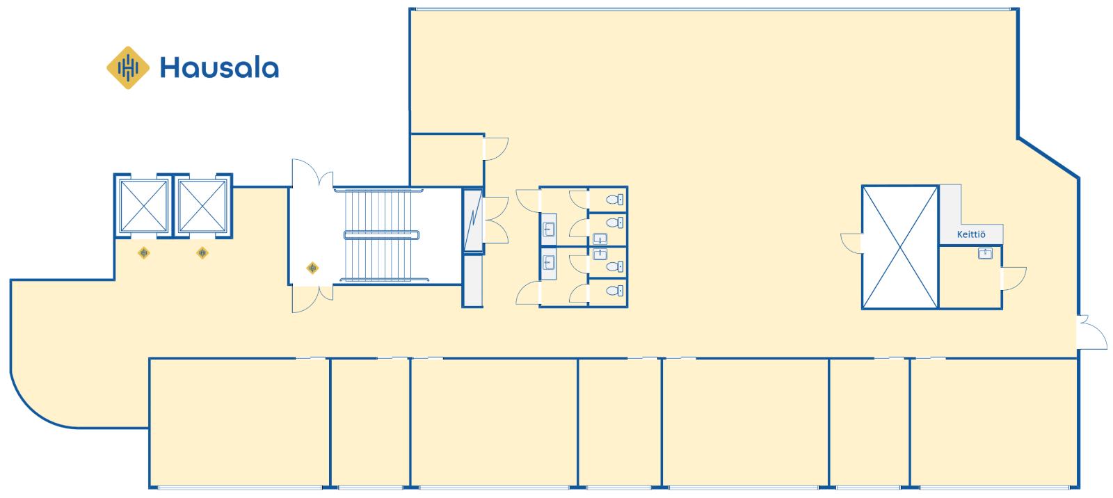
Vuokrataan siisti viidennen kerroksen ilmastoitu 413 m² toimistotila Sörnäisistä.
Kalasataman Kummeli Business Parkin palvelut ovat käytettävissä mm. Aulapalvelu, vuokrattavissa olevat neuvotteluhuoneet sekä lounasravintola. Erinomainen sijainti Sörnäisten, Kalasataman ja Suvilahden keskiössä. Metro ja REDI sijaitsevat kävelymatkan päässä.
Julkisen liikenteen saavutettavuus kohteeseen on erinomainen; Metrolle 350 m, Raitiovaunupysäkille 290 m ja bussipysäkille 110 m.Pyörällä kulkeville löytyy peseytymis- ja pukeutumistilat. Pysäköintipaikkoja on kiinteistön pysäköintihallissa ja vieraspysäköinti löytyy viereisen Suvilahdenkadun 3-5 sisäpihalla.
Kysy lisätietoja tai sovitaan käynti kohteelle jo tänään!
Kalasataman Kummeli Business Parkin palvelut ovat käytettävissä mm. Aulapalvelu, vuokrattavissa olevat neuvotteluhuoneet sekä lounasravintola. Erinomainen sijainti Sörnäisten, Kalasataman ja Suvilahden keskiössä. Metro ja REDI sijaitsevat kävelymatkan päässä.
Julkisen liikenteen saavutettavuus kohteeseen on erinomainen; Metrolle 350 m, Raitiovaunupysäkille 290 m ja bussipysäkille 110 m.Pyörällä kulkeville löytyy peseytymis- ja pukeutumistilat. Pysäköintipaikkoja on kiinteistön pysäköintihallissa ja vieraspysäköinti löytyy viereisen Suvilahdenkadun 3-5 sisäpihalla.
Kysy lisätietoja tai sovitaan käynti kohteelle jo tänään!
Kohteen tiedot
Pinta-ala:
413 m²
Rakennusvuosi:
1993
Kerros:
5
Yhteyshenkilö:

Mikko Ranta
mikko.ranta@hausala.fi
050 360 6500
mikko.ranta@hausala.fi
050 360 6500

Mika Savikko
mika.savikko@hausala.fi
050 472 7077
mika.savikko@hausala.fi
050 472 7077