Vuokrataan - Pakkalantie 21
Pakkalantie 21, 01510 Vantaa, Aviapolis
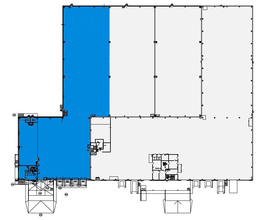
Vuokrataan Vantaan Aviapoliksesta heti vapaat ensimmäisen kerroksen 2 243 m² varastotilat.
Lastauslaituri, 4 kpl lastaustaskuja, vapaa korkeus 6-10 m. Muutamia toimistohuoneita ja sosiaalitilat.
Kysy rohkeasti lisätietoja ja sovitaan käynti kohteella jo tänään!
Lastauslaituri, 4 kpl lastaustaskuja, vapaa korkeus 6-10 m. Muutamia toimistohuoneita ja sosiaalitilat.
Kysy rohkeasti lisätietoja ja sovitaan käynti kohteella jo tänään!
Kohteen tiedot
Pinta-ala:
2 243 m²
Kerros:
1
Yhteyshenkilö:

Matti Pöyhiä
matti.poyhia@hausala.fi
040 722 6650
matti.poyhia@hausala.fi
040 722 6650

Mika Savikko
mika.savikko@hausala.fi
050 472 7077
mika.savikko@hausala.fi
050 472 7077