Vuokrataan - Pakkalantie 19
Pakkalantie 19, 01510 Vantaa, Aviapolis
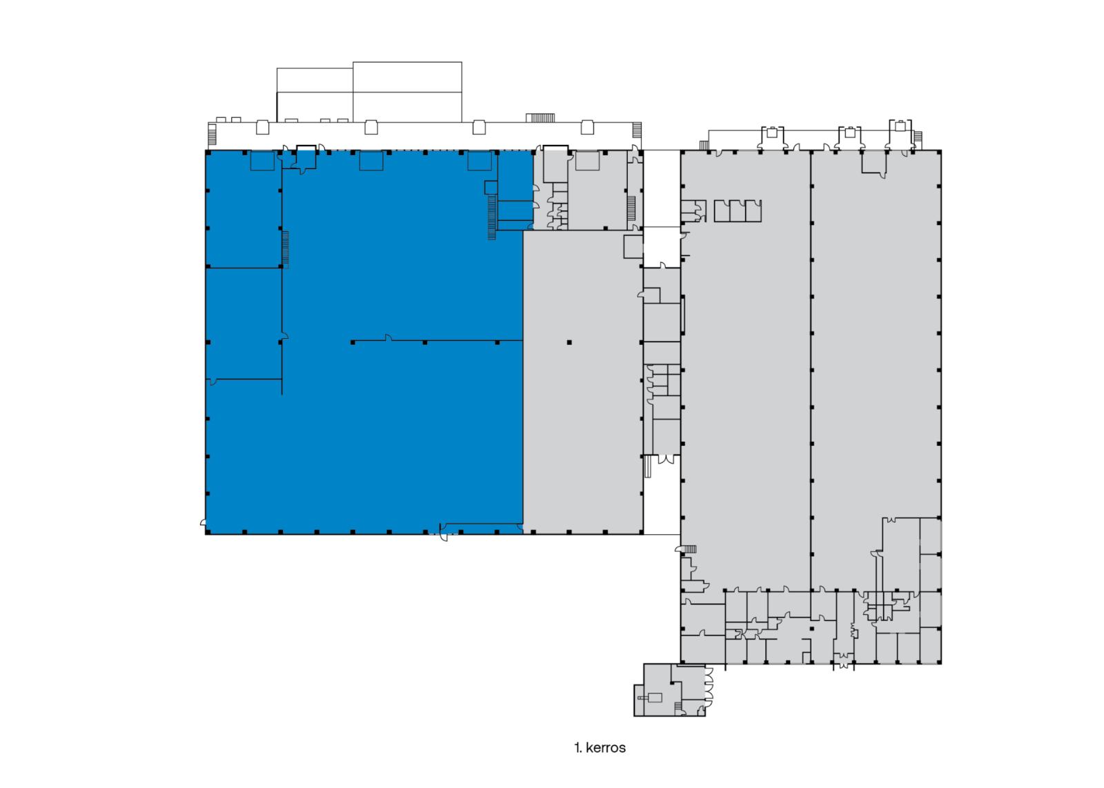
Vuokrataan Vantaan Aviapoliksesta heti vapaa ensimmäisen kerroksen 3 629 m² varasto- ja toimistotila. Tilaan on 5kpl nosto- ovia ja lastauslaituri. Lattian kantavuus on 800kg/m². Päätilan vapaa korkeus n. 6,5 m, osin matalampaa tilaa. Tilassa on lisäksi n. 242 m² kevytvarasto sekä 412,5 m² toimistotila.
Kiinteistö on helposti saavutettavissa Kehä III:lta (E18), josta on myös sujuvat yhteydet kaikille pääteille Helsingin seudulla.Pakkalantie 19 sijaitsee Flamingon ja lentokentän välittömässä läheisyydessä, Vantaan sydämessä, Kehä III:n tuntumassa. Juna- ja bussiyhteydet Helsingin keskustaan ja muualle Vantaalle ovat hyvät.
Kysy rohkeasti lisätietoja ja sovitaan käynti kohteella jo tänään!
Kiinteistö on helposti saavutettavissa Kehä III:lta (E18), josta on myös sujuvat yhteydet kaikille pääteille Helsingin seudulla.Pakkalantie 19 sijaitsee Flamingon ja lentokentän välittömässä läheisyydessä, Vantaan sydämessä, Kehä III:n tuntumassa. Juna- ja bussiyhteydet Helsingin keskustaan ja muualle Vantaalle ovat hyvät.
Kysy rohkeasti lisätietoja ja sovitaan käynti kohteella jo tänään!
Kohteen tiedot
Pinta-ala:
3 629 m²
Rakennusvuosi:
1976
Kerros:
1
Yhteyshenkilö:

Matti Pöyhiä
matti.poyhia@hausala.fi
040 722 6650
matti.poyhia@hausala.fi
040 722 6650

Mika Savikko
mika.savikko@hausala.fi
050 472 7077
mika.savikko@hausala.fi
050 472 7077