Vuokrataan - Pakkalantie 19
Pakkalantie 19, 01510 Vantaa, Aviapolis
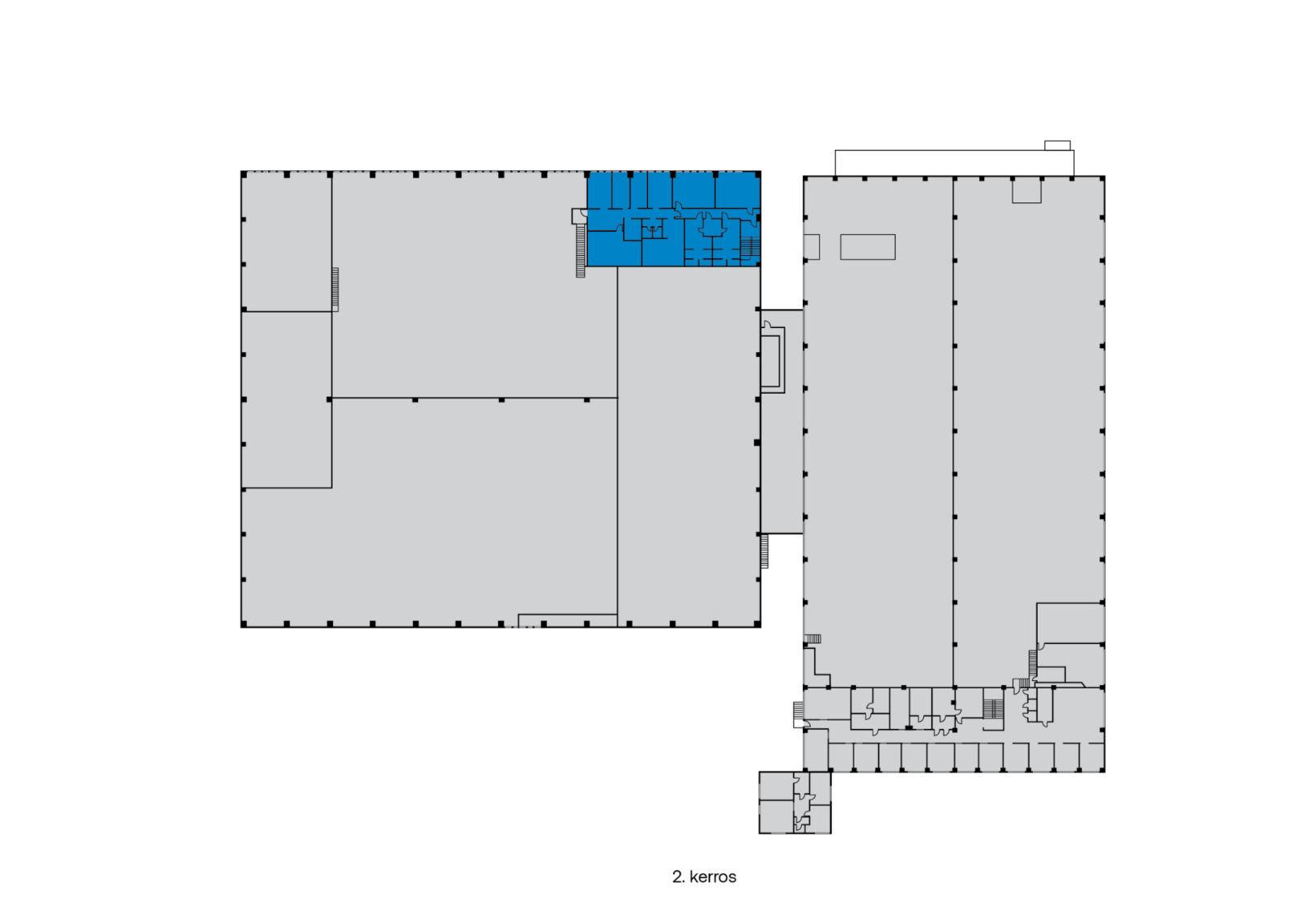
Vuokrataan Vantaan Aviapoliksesta heti vapaa toisen kerroksen remontoitu 295 m² toimistotila.
Kiinteistö on helposti saavutettavissa Kehä III:lta (E18), josta on myös sujuvat yhteydet kaikille pääteille Helsingin seudulla. Pakkalantie 19 sijaitsee Flamingon ja lentokentän välittömässä läheisyydessä, Vantaan sydämessä, Kehä III:n tuntumassa. Myös juna- ja bussiyhteydet Helsingin keskustaan ja muualle Vantaalle ovat hyvät.
Kysy rohkeasti lisätietoja ja sovitaan käynti kohteella jo tänään!
Kiinteistö on helposti saavutettavissa Kehä III:lta (E18), josta on myös sujuvat yhteydet kaikille pääteille Helsingin seudulla. Pakkalantie 19 sijaitsee Flamingon ja lentokentän välittömässä läheisyydessä, Vantaan sydämessä, Kehä III:n tuntumassa. Myös juna- ja bussiyhteydet Helsingin keskustaan ja muualle Vantaalle ovat hyvät.
Kysy rohkeasti lisätietoja ja sovitaan käynti kohteella jo tänään!
Kohteen tiedot
Pinta-ala:
295 m²
Rakennusvuosi:
1976
Kerros:
2
Yhteyshenkilö:

Matti Pöyhiä
matti.poyhia@hausala.fi
040 722 6650
matti.poyhia@hausala.fi
040 722 6650

Mika Savikko
mika.savikko@hausala.fi
050 472 7077
mika.savikko@hausala.fi
050 472 7077