Vuokrataan - Etu-Hankkionkatu 1, Pajavuokraajat
Etu-Hankkionkatu 1, Pajavuokraajat, 33700 Tampere, Hankkio
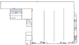
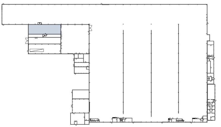
Vuokrataan Tampereen Hankkiosta ensimmäisen kerroksen 255 m² varasto- / tuotantotila.
Oma erillinen hallitila, entinen hiekkapuhaltamo. Vaatii lattian kunnostamisen ennen käyttöönottoa. Lastausovi maantasossa, erillisiä kaappeja vuokrattavissa sosiaalitiloista. Tilan läheisyydessä toimisto- ja sosiaalitilat.
Kysy rohkeasti lisätietoja ja sovitaan käynti kohteella jo tänään!
Oma erillinen hallitila, entinen hiekkapuhaltamo. Vaatii lattian kunnostamisen ennen käyttöönottoa. Lastausovi maantasossa, erillisiä kaappeja vuokrattavissa sosiaalitiloista. Tilan läheisyydessä toimisto- ja sosiaalitilat.
Kysy rohkeasti lisätietoja ja sovitaan käynti kohteella jo tänään!
Kohteen tiedot
Pinta-ala:
255 m²
Rakennusvuosi:
1968
Kerros:
1
Yhteyshenkilö:

Mika Savikko
mika.savikko@hausala.fi
050 472 7077
mika.savikko@hausala.fi
050 472 7077

Tero Ala-Hannula
tero.ala-hannula@hausala.fi
040 508 1351
tero.ala-hannula@hausala.fi
040 508 1351