Vuokrataan - Harkkoraudantie 7
Harkkoraudantie 7, 00700 Helsinki, Tattariharju
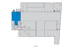
Vuokrataan Helsingin Tattariharjulta ensimmäisen kerroksen valoisa 299 m² toimisto-/liiketila. Pohjaratkaisu on joustava ja tilat remontoidaan yhdessä käyttäjän kanssa viihtyisiksi. Tästä tilasta saadaan esimerkiksi hieno Showroom! Huom. osa valokuvista on digitaalisesti käsiteltyjä.
Kiinteistön keskeinen sijainti Tattariharjun teollisuusalueella 4-tien varrella, hyvien kulkuyhteyksien äärellä kehäteiden välissä, sujuvoittaa liiketoimintaasi.
Julkisen liikenteen yhteydet mm. Helsingin keskustaan lähtevät bussipysäkiltä lähistöltä.
Kysy rohkeasti lisätietoja ja sovitaan käynti kohteella jo tänään!
Kiinteistön keskeinen sijainti Tattariharjun teollisuusalueella 4-tien varrella, hyvien kulkuyhteyksien äärellä kehäteiden välissä, sujuvoittaa liiketoimintaasi.
Julkisen liikenteen yhteydet mm. Helsingin keskustaan lähtevät bussipysäkiltä lähistöltä.
Kysy rohkeasti lisätietoja ja sovitaan käynti kohteella jo tänään!
Kohteen tiedot
Pinta-ala:
299 m²
Rakennusvuosi:
1966
Kerros:
1
Yhteyshenkilö:

Mika Savikko
mika.savikko@hausala.fi
050 472 7077
mika.savikko@hausala.fi
050 472 7077

Mikko Ranta
mikko.ranta@hausala.fi
050 360 6500
mikko.ranta@hausala.fi
050 360 6500