Vuokrataan - Koskelontie 21-25
Koskelontie 21-25, 02920 Espoo, Koskelo
Vuokrataan Espoon Koskelosta heti vapaa useamman kerroksen 2 040 m² varasto- ja toimistotila.
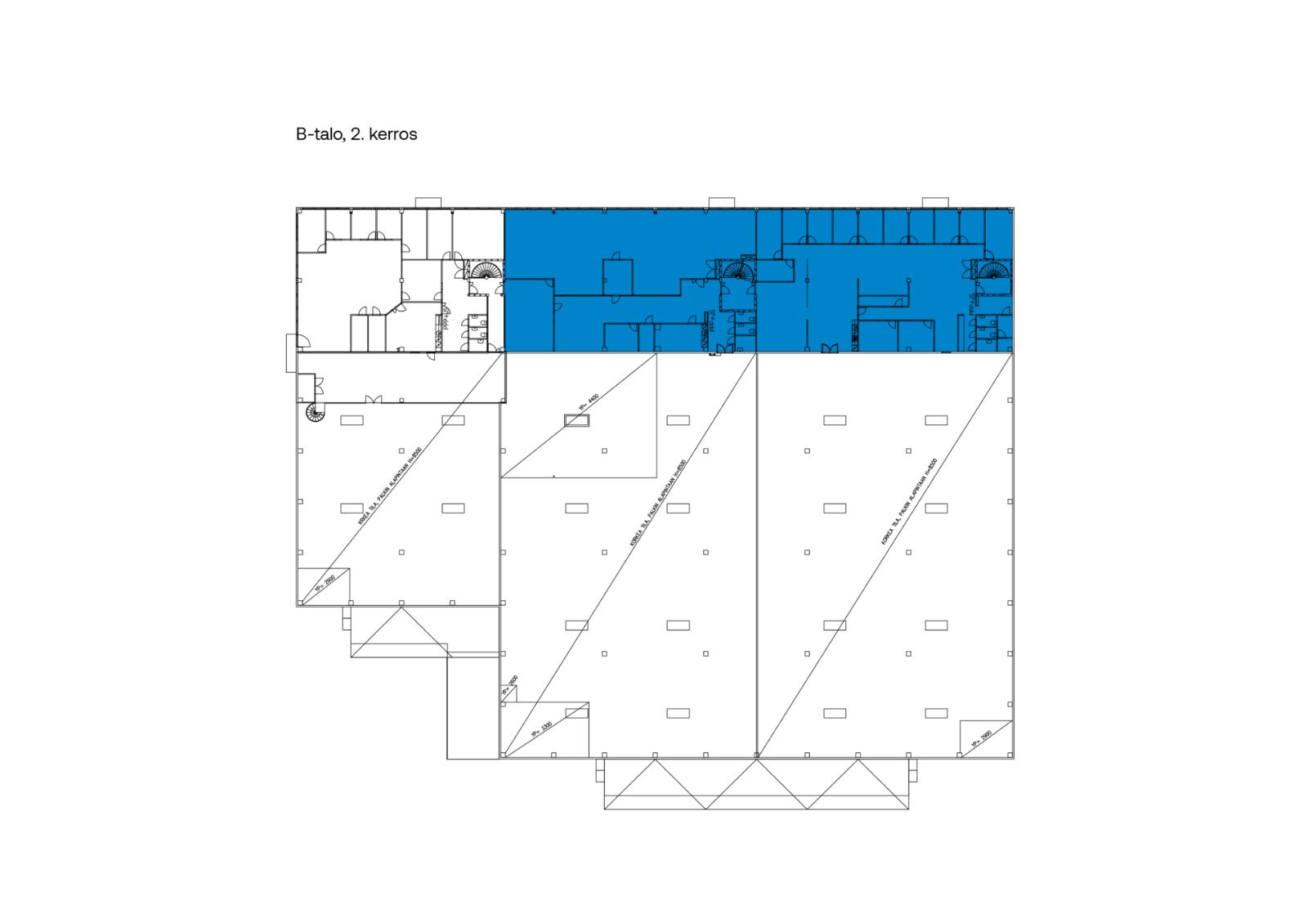
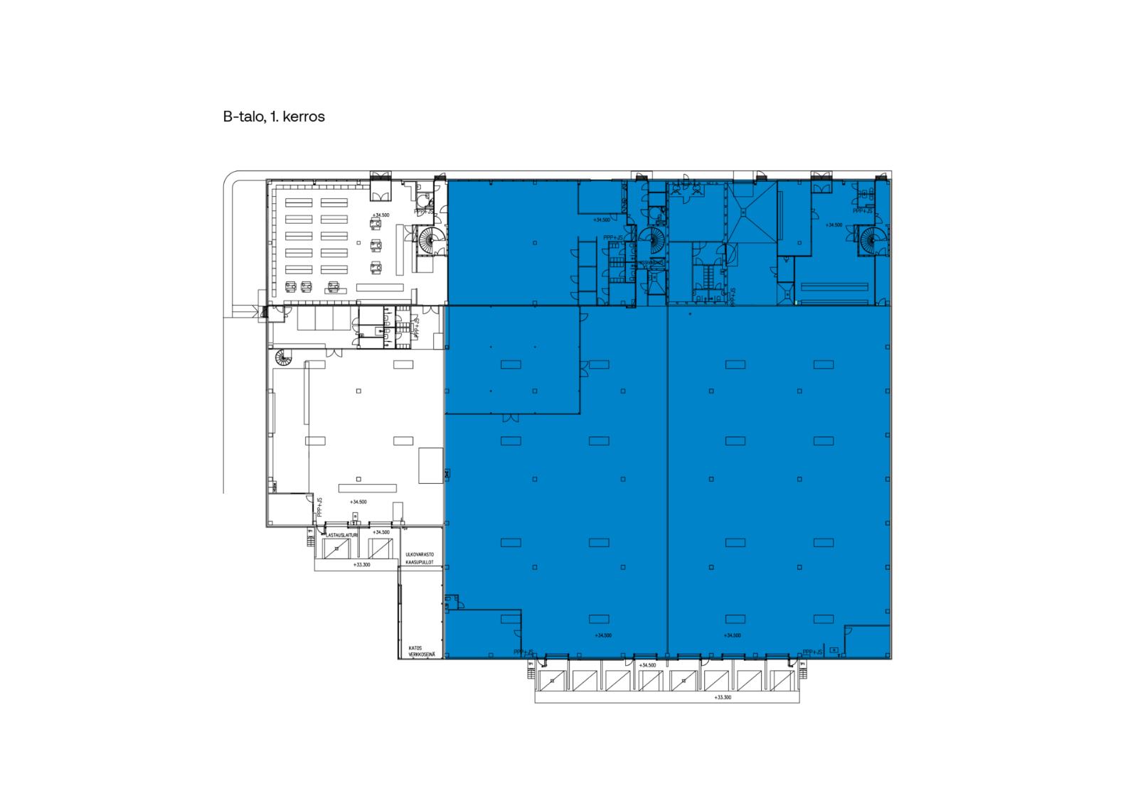
B-talosta, 2. krs 424 m² edustavaa toimistotilaa ja 1. krs varasto 1 391 m² sekä sosiaalitilat, tilaan myös maantason nosto-ovi sekä toisella puolella lastauslaituri.
Kiinteistöstä on mahdollista saada liike-, toimisto- ja varastotilat saman katon alta. Tilat ovat remontoitavissa käyttäjien viihtyvyyden takaamiseksi.
Espoon Koskelossa sijaitseva Koskelo Trade Park on logistiikkakiinteistö, jonka keskeinen sijainti Kehä III:n välittömässä läheisyydessä takaa nopeat yhteydet kaikille pääväylille. Kiinteistön kaikkiin taloihin on tehty energiaremontti ja B- sekä C-taloissa on aurinkopaneelit.
Kysy rohkeasti lisätietoja ja sovitaan käynti kohteella jo tänään!
B-talosta, 2. krs 424 m² edustavaa toimistotilaa ja 1. krs varasto 1 391 m² sekä sosiaalitilat, tilaan myös maantason nosto-ovi sekä toisella puolella lastauslaituri.
Kiinteistöstä on mahdollista saada liike-, toimisto- ja varastotilat saman katon alta. Tilat ovat remontoitavissa käyttäjien viihtyvyyden takaamiseksi.
Espoon Koskelossa sijaitseva Koskelo Trade Park on logistiikkakiinteistö, jonka keskeinen sijainti Kehä III:n välittömässä läheisyydessä takaa nopeat yhteydet kaikille pääväylille. Kiinteistön kaikkiin taloihin on tehty energiaremontti ja B- sekä C-taloissa on aurinkopaneelit.
Kysy rohkeasti lisätietoja ja sovitaan käynti kohteella jo tänään!
Kohteen tiedot
Pinta-ala:
2 040 m²
Kerros:
1-2
Yhteyshenkilö:

Mikko Ranta
mikko.ranta@hausala.fi
050 360 6500
mikko.ranta@hausala.fi
050 360 6500

Mika Savikko
mika.savikko@hausala.fi
050 472 7077
mika.savikko@hausala.fi
050 472 7077