Vuokrataan - Koskelontie 19
Koskelontie 19, 02920 Espoo, Koskelo
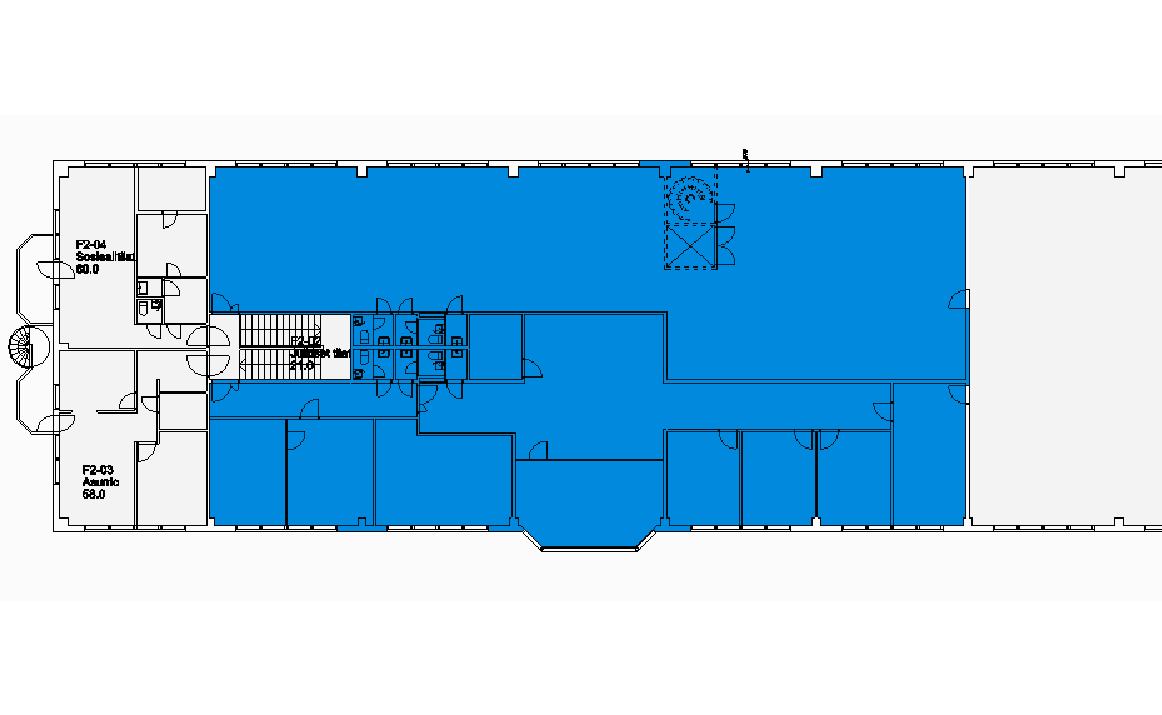
Vuokrataan Espoon Koskelosta heti vapaa toisen kerroksen 550 m² toimistotila. Huom. osa kuvista on digitaalisesti käsiteltyjä.
Toimisto on toiselta puoleltaan avaraa avokonttoritilaa n. 300 m² ja toiselta puolelta se koostuu erillisistä työ-/neuvotteluhuoneista. Tilat voidaan yhdistää muokaten tai jakaa tarpaiden mukaisesti.
Alueella on lounasravintoloita ja lähderannan ostoskeskukseen matkaa on n. 1 km.
Kiinteistön sijainti on hyvä, Kehä III on välittömässä läheisyydessä!
Kysy rohkeasti lisätietoja ja sovitaan käynti kohteella jo tänään!
Toimisto on toiselta puoleltaan avaraa avokonttoritilaa n. 300 m² ja toiselta puolelta se koostuu erillisistä työ-/neuvotteluhuoneista. Tilat voidaan yhdistää muokaten tai jakaa tarpaiden mukaisesti.
Alueella on lounasravintoloita ja lähderannan ostoskeskukseen matkaa on n. 1 km.
Kiinteistön sijainti on hyvä, Kehä III on välittömässä läheisyydessä!
Kysy rohkeasti lisätietoja ja sovitaan käynti kohteella jo tänään!
Kohteen tiedot
Pinta-ala:
247 m² - 550 m²
Rakennusvuosi:
1985
Kerros:
2
Yhteyshenkilö:

Mikko Ranta
mikko.ranta@hausala.fi
050 360 6500
mikko.ranta@hausala.fi
050 360 6500

Mika Savikko
mika.savikko@hausala.fi
050 472 7077
mika.savikko@hausala.fi
050 472 7077