Vuokrataan - Suuri varasto-/tuotantotila Espoon Koskelossa!
Koskelontie 13, 02920 Espoo, Koskelo
Vuokrataan Espoon Koskelosta heti vapaa 9 039 m² varasto-/tuotantorakennus.
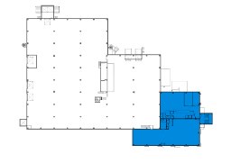
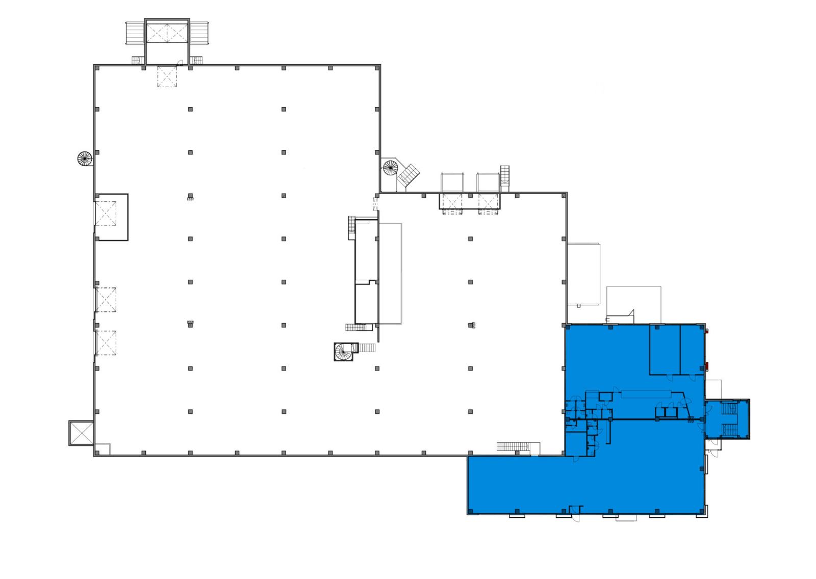
Tilat sisältää varasto-/tuotantotilaa 7 100 m², toimistotilaa 790 m² sekä sosiaali- ja muuta tilaa 1 170 m², joista ravintolatilat 304,5 m². Kiinteistössä on yhteensä 11 lastaustaskua ja varaston lattiankantavuus 1. kerroksessa on 2 000 kg/m² ja 2. kerroksessa 1000 kg/m². Varastotilojen vapaakorkeus on noin 4-4,5 metriä. Huom. osa kohteen kuvista on digitaalisesti käsiteltyjä/havainnekuvia.
Loistava sijainti Espoon Koskelossa Kehä III:n välittömässä läheisyydessä. Kiinteistöstä on hyvät yhteydet kaikille pääväylille sekä Helsinki-Vantaan lentoasemalle ja Vuosaaren satamaan.
Kysy rohkeasti lisätietoja ja sovitaan käynti kohteella jo tänään!
Tilat sisältää varasto-/tuotantotilaa 7 100 m², toimistotilaa 790 m² sekä sosiaali- ja muuta tilaa 1 170 m², joista ravintolatilat 304,5 m². Kiinteistössä on yhteensä 11 lastaustaskua ja varaston lattiankantavuus 1. kerroksessa on 2 000 kg/m² ja 2. kerroksessa 1000 kg/m². Varastotilojen vapaakorkeus on noin 4-4,5 metriä. Huom. osa kohteen kuvista on digitaalisesti käsiteltyjä/havainnekuvia.
Loistava sijainti Espoon Koskelossa Kehä III:n välittömässä läheisyydessä. Kiinteistöstä on hyvät yhteydet kaikille pääväylille sekä Helsinki-Vantaan lentoasemalle ja Vuosaaren satamaan.
Kysy rohkeasti lisätietoja ja sovitaan käynti kohteella jo tänään!
Kohteen tiedot
Pinta-ala:
9 039 m²
Kerros:
1
Yhteyshenkilö:

Mikko Ranta
mikko.ranta@hausala.fi
050 360 6500
mikko.ranta@hausala.fi
050 360 6500

Mika Savikko
mika.savikko@hausala.fi
050 472 7077
mika.savikko@hausala.fi
050 472 7077