Vuokrataan - Espoon Niittytaival 13
Niittytaival 13, 02200 Espoo, Niittymaa
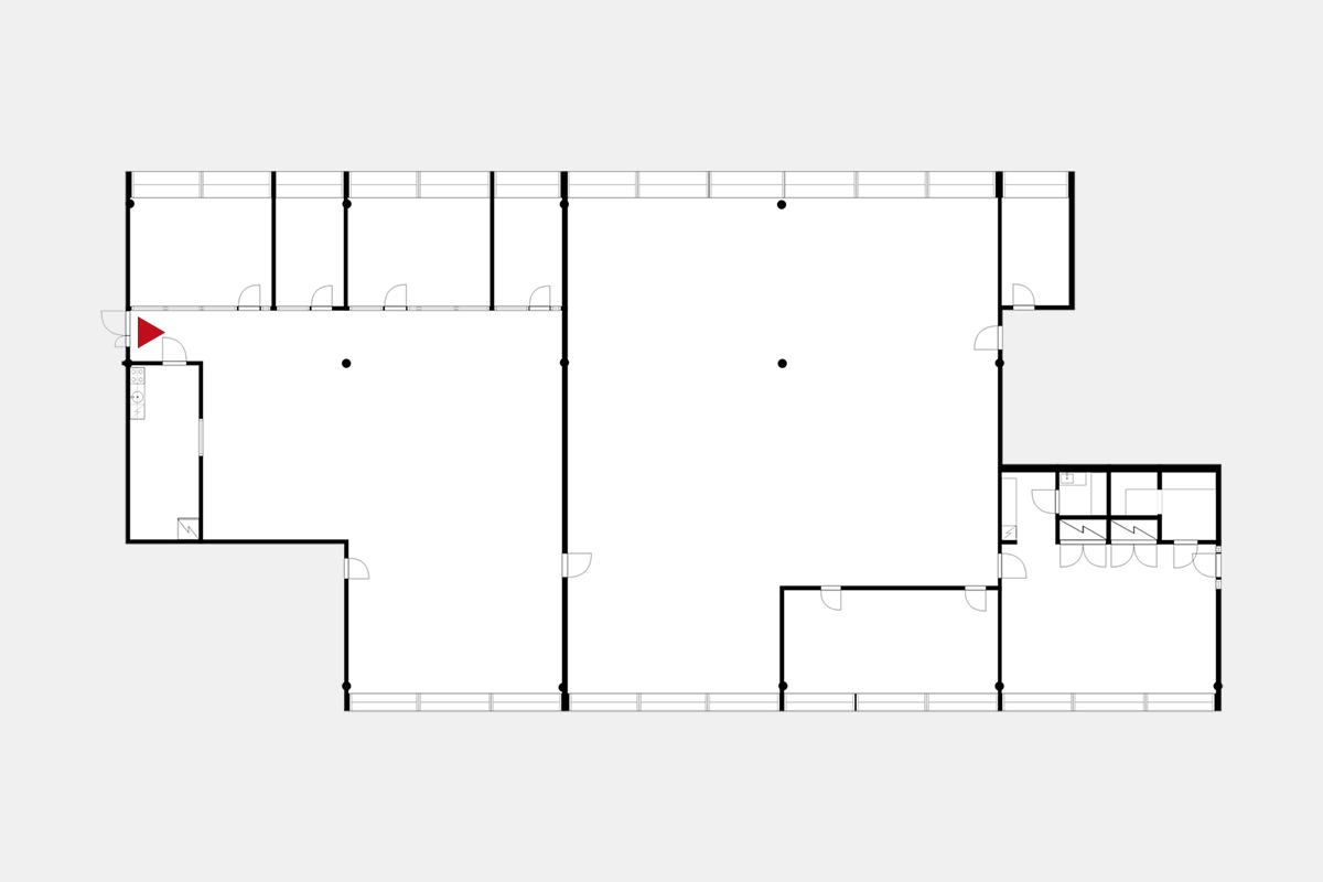
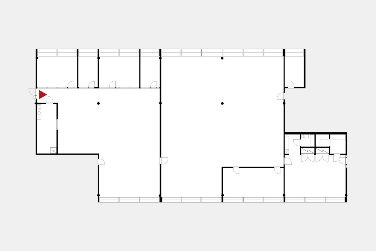
Vuokrataan valoisa ja tilava kolmannen kerroksen 628 m² toimistotila hyvällä sijainnilla Espoon Niittykummusta. Tila on mahdollista muokata asiakkaan toiveiden mukaan.
Niittytaival 13 tarjoaa valoisaa toimitilaa erikokoisille yrityksille viihtyisässä työympäristössä. Kaikki tilat ovat muunneltavissa yritysten toimintaa tukeviksi työskentely-ympäristöiksi. Länsiväylä, Kehä II sekä läheinen Niittykummun metroasema tarjoavat sujuvat liikenneyhteydet eri suuntiin. Kiinteistön tasokas pyöräparkki ja pukuhuonetilat kannustavat työmatkapyöräilyyn.Pysäkointipaikkoja löytyy kiinteistön pihalta.
Kiinteistön palvelut ovat kattavat mm.Lounasravintola, Catering, sauna sekä siivouspalvelut.
Ota yhteyttä, käydään kiertämässä kohteen tilat ja suunnitellaan teille sopiva kokonaisuus!
Niittytaival 13 tarjoaa valoisaa toimitilaa erikokoisille yrityksille viihtyisässä työympäristössä. Kaikki tilat ovat muunneltavissa yritysten toimintaa tukeviksi työskentely-ympäristöiksi. Länsiväylä, Kehä II sekä läheinen Niittykummun metroasema tarjoavat sujuvat liikenneyhteydet eri suuntiin. Kiinteistön tasokas pyöräparkki ja pukuhuonetilat kannustavat työmatkapyöräilyyn.Pysäkointipaikkoja löytyy kiinteistön pihalta.
Kiinteistön palvelut ovat kattavat mm.Lounasravintola, Catering, sauna sekä siivouspalvelut.
Ota yhteyttä, käydään kiertämässä kohteen tilat ja suunnitellaan teille sopiva kokonaisuus!
Kohteen tiedot
Pinta-ala:
628 m²
Rakennusvuosi:
2002
Kerros:
3
Yhteyshenkilö:

Mikko Ranta
mikko.ranta@hausala.fi
050 360 6500
mikko.ranta@hausala.fi
050 360 6500

Mika Savikko
mika.savikko@hausala.fi
050 472 7077
mika.savikko@hausala.fi
050 472 7077